
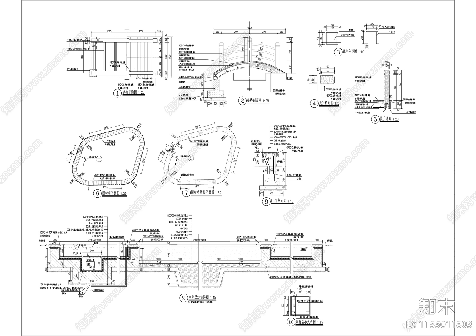
幼儿园小水系大样详图CAD下载
ID: 1135011803
复制
上传作者
labububbbbb
labububbbbb上传时间2023-05-15
文件大小0.34M
设计风格:现代简约
CAD版本:CAD2014
包含文件:CAD
授权普通
立即下载
收藏
分享
举报
相关推荐
综合
景观小品
综合景观小品
亭子
廊架
景墙
雨棚
围墙
挡土墙
入口
景观坐凳

labububbbbb上传时间2023-05-15
文件大小0.34M
设计风格:现代简约
CAD版本:CAD2014
包含文件:CAD
授权普通