1/8


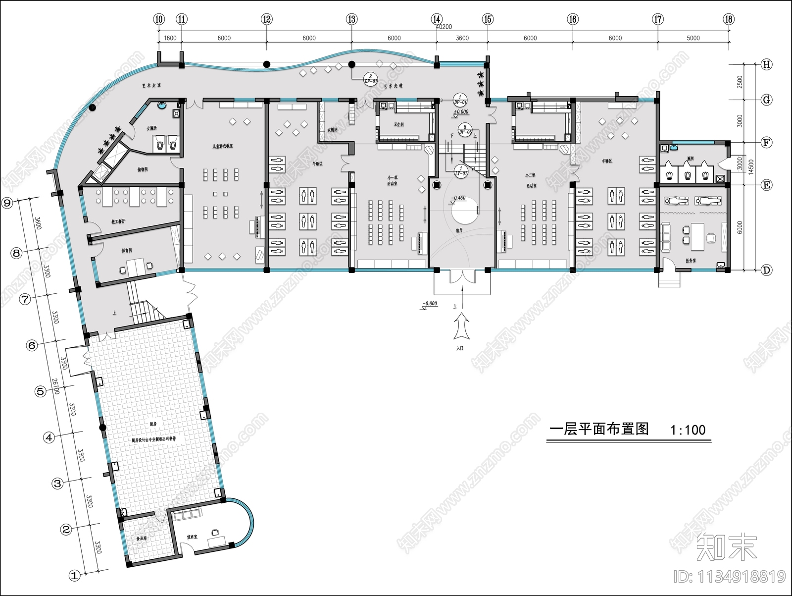
幼儿园平面布置图CAD下载
ID: 1134918819
复制
上传作者
Feel Good!
Feel Good!上传时间2023-05-14
文件大小10.3M
设计风格:现代简约
CAD版本:CAD2004
包含文件:CAD
授权独家
立即下载
收藏
分享
举报
相关推荐
综合
平面图
工装平面图
景观平面图
规划平面图
其他平面图
小区平面图


Feel Good!上传时间2023-05-14
文件大小10.3M
设计风格:现代简约
CAD版本:CAD2004
包含文件:CAD
授权独家