1/4


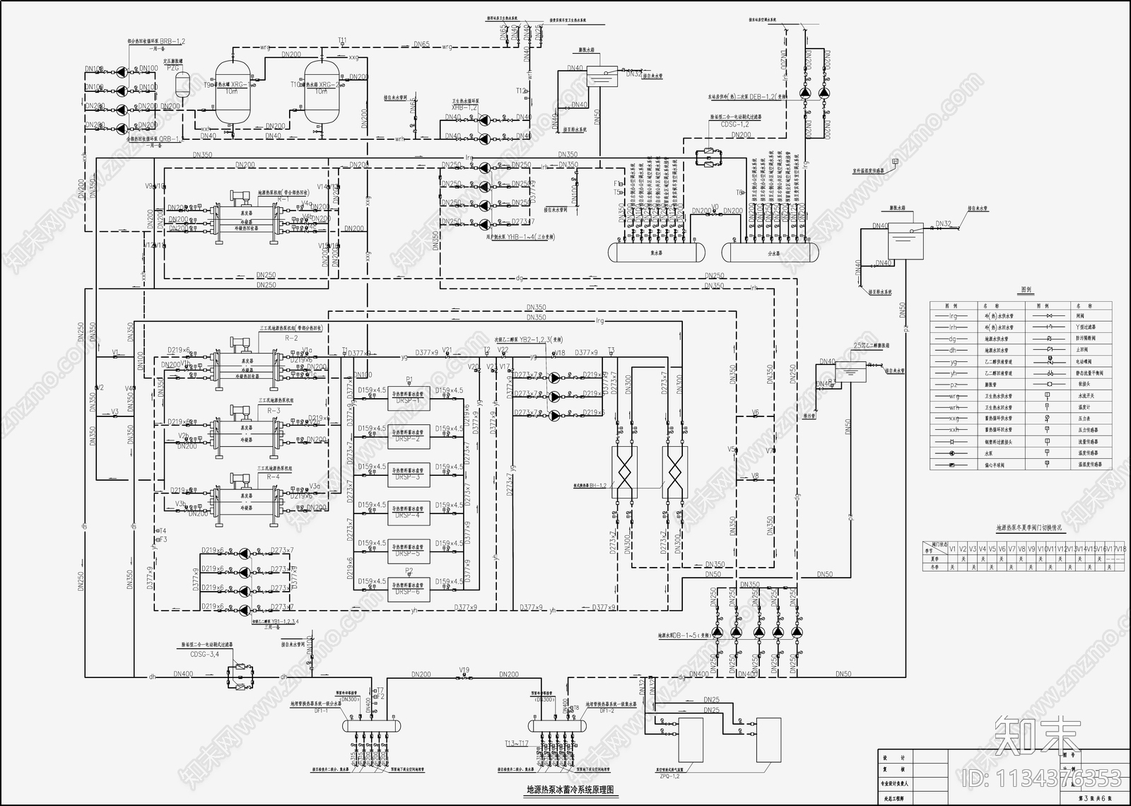
火车站西站房地源热泵冰蓄冷系统图CAD下载
ID: 1134376353
复制
上传作者
对方忙线中
对方忙线中上传时间2023-05-07
文件大小0.3M
设计风格:现代简约
CAD版本:CAD2016
包含文件:CAD
授权独家
立即下载
收藏
分享
举报
相关推荐
综合
电气工程节点
暖通节点
给排水节点详图
电气节点
水处理节点
其他电气工程节点


对方忙线中上传时间2023-05-07
文件大小0.3M
设计风格:现代简约
CAD版本:CAD2016
包含文件:CAD
授权独家