1/10


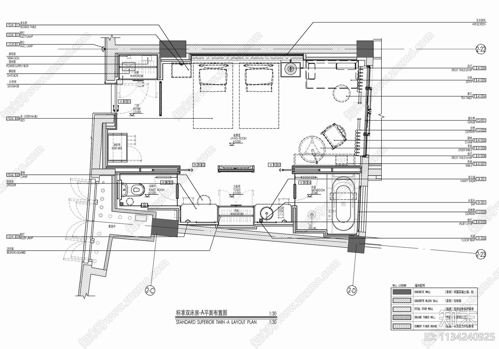
45㎡酒店标准双床房CAD下载
ID: 1134240925
复制
上传作者
@白鹿原
@白鹿原上传时间2023-05-05
文件大小18.14M
设计风格:现代简约
CAD版本:CAD2004
包含文件:CAD
授权普通
立即下载
收藏
分享
举报
相关推荐
综合
酒店
酒店客房
酒店餐厅
酒店大堂
酒店公区
酒店卫生间
酒店套房
酒店宴会厅
其他酒店


@白鹿原上传时间2023-05-05
文件大小18.14M
设计风格:现代简约
CAD版本:CAD2004
包含文件:CAD
授权普通