CAD频道
CAD图库
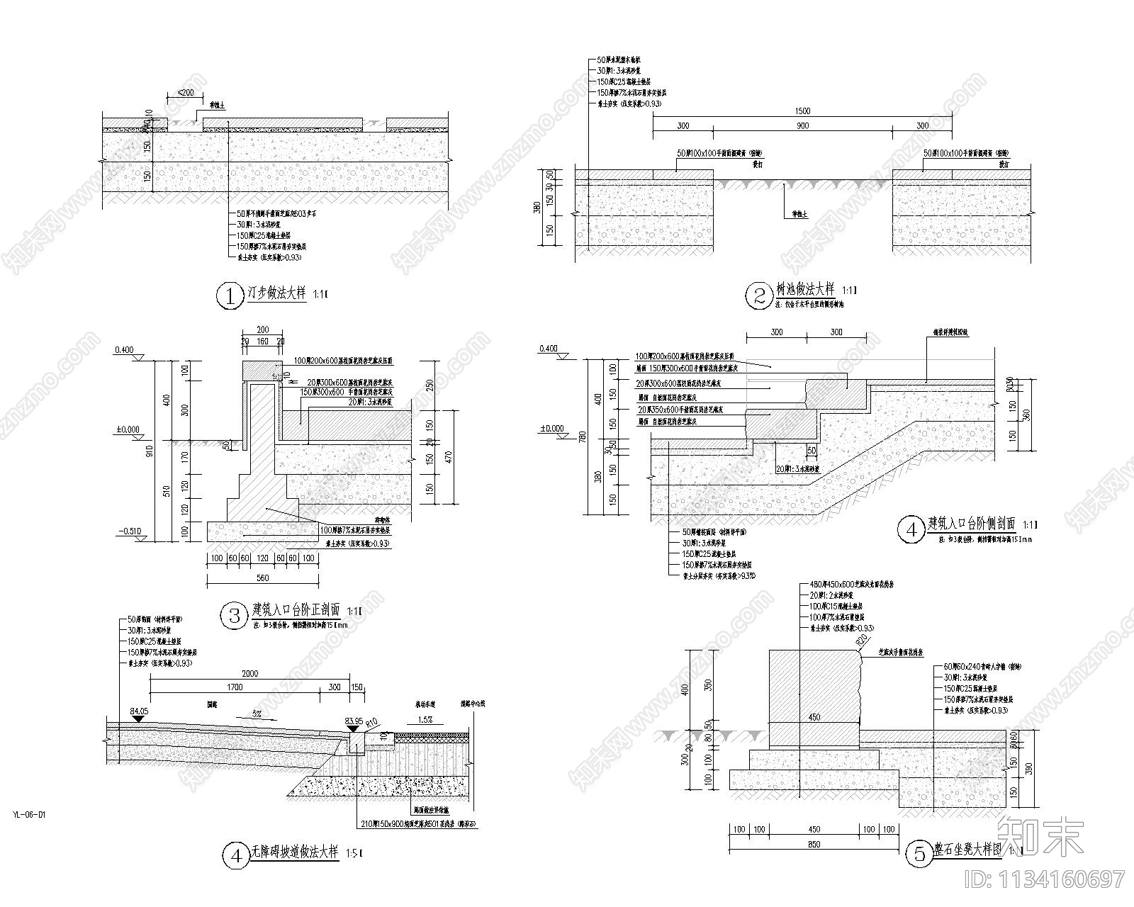
景观通用节点树池汀步铺装大样 施工图
1/
3
Previous
Next
景观通用节点树池汀步铺装大样CAD下载
ID: 1134160697
复制
上传作者
FA...
上传时间
2023-05-04
文件大小
6.07M
设计风格:
现代简约
CAD版本:
CAD2010
包含文件:
CAD
授权
独家
立即下载
收藏
分享
举报
相关推荐
综合
景观小品
铺装
亭子
廊架
景墙
综合景观小品
雨棚
围墙
挡土墙
入口