CAD频道
CAD图库
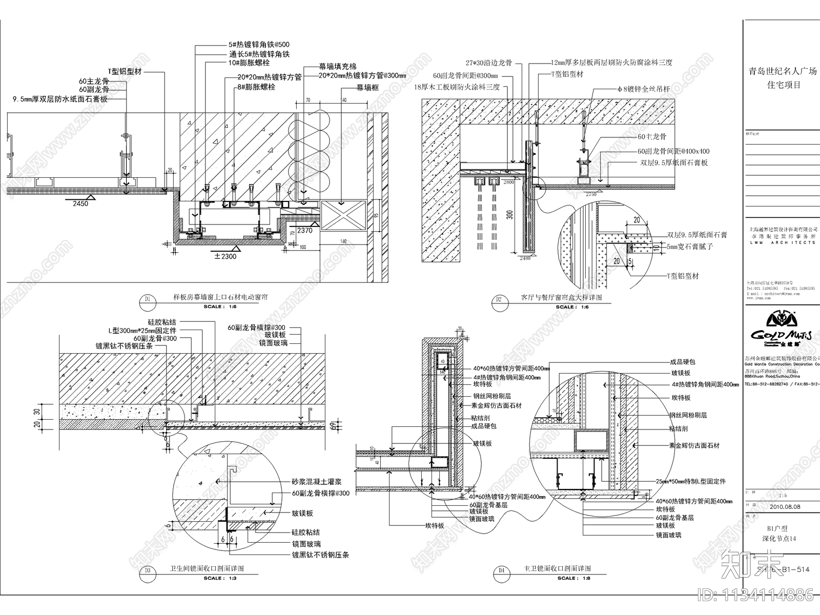
幕墙大样 施工图 节点 结构节点图
1/
8
Previous
Next
幕墙大样CAD下载
ID: 1134114886
复制
上传作者
刺客伍六七
上传时间
2023-05-02
文件大小
9.05M
设计风格:
现代简约
CAD版本:
CAD2014
包含文件:
CAD
授权
普通
立即下载
收藏
分享
举报
相关推荐
综合
结构节点图
幕墙结构节点
桁架
钢结构节点
混凝土节点
转换层
其他结构设计