1/4


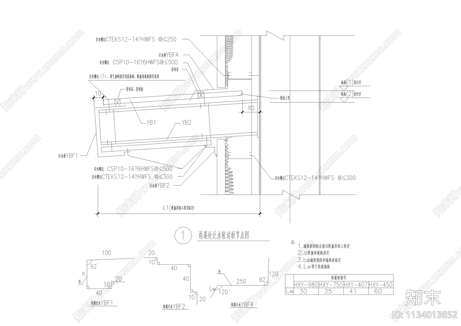
雨蓬泛水收边板详图CAD下载
ID: 1134013852
复制
上传作者
小趴菜园
小趴菜园上传时间2023-04-28
文件大小0.81M
设计风格:现代简约
CAD版本:CAD2004
包含文件:CAD
授权普通
立即下载
收藏
分享
举报
相关推荐
综合
建筑工程节点
建筑综合节点
屋顶
柱子节点
吊装节点
斗拱节点
楼板节点
女儿墙节点
塔吊节点
天窗节点


小趴菜园上传时间2023-04-28
文件大小0.81M
设计风格:现代简约
CAD版本:CAD2004
包含文件:CAD
授权普通