1/5


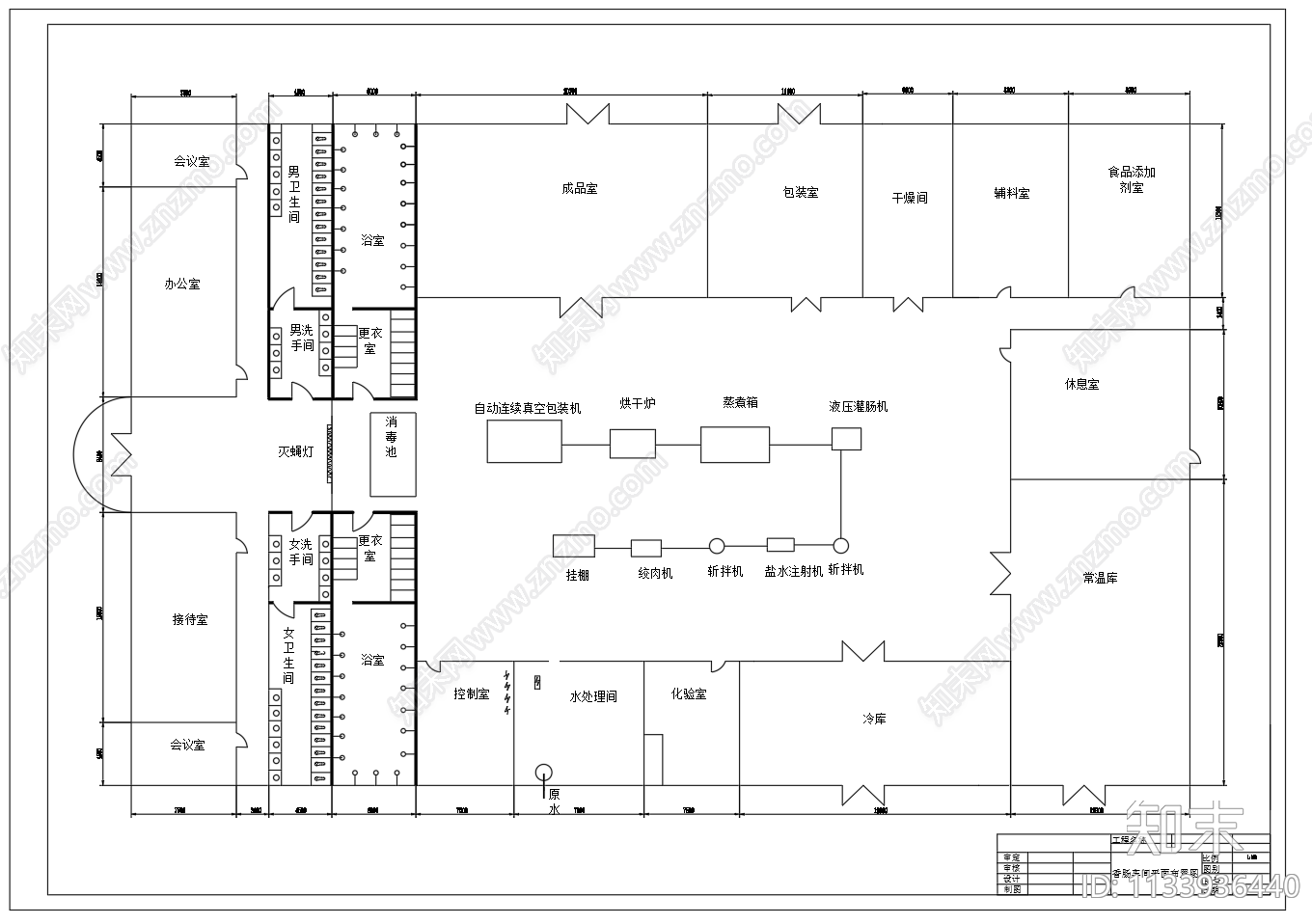
10000吨香肠肉类食品厂车间工艺流程图CAD下载
ID: 1133936440
复制
上传作者
小小鱼鱼
小小鱼鱼上传时间2023-04-27
文件大小0.21M
设计风格:现代简约
CAD版本:CAD2000
包含文件:CAD
授权独家
立即下载
收藏
分享
举报
相关推荐
综合
公共空间
车间
其他公共空间
公共卫生间
宿舍
门头
服务中心
活动中心
会展
母婴室


小小鱼鱼上传时间2023-04-27
文件大小0.21M
设计风格:现代简约
CAD版本:CAD2000
包含文件:CAD
授权独家