CAD频道
CAD图库
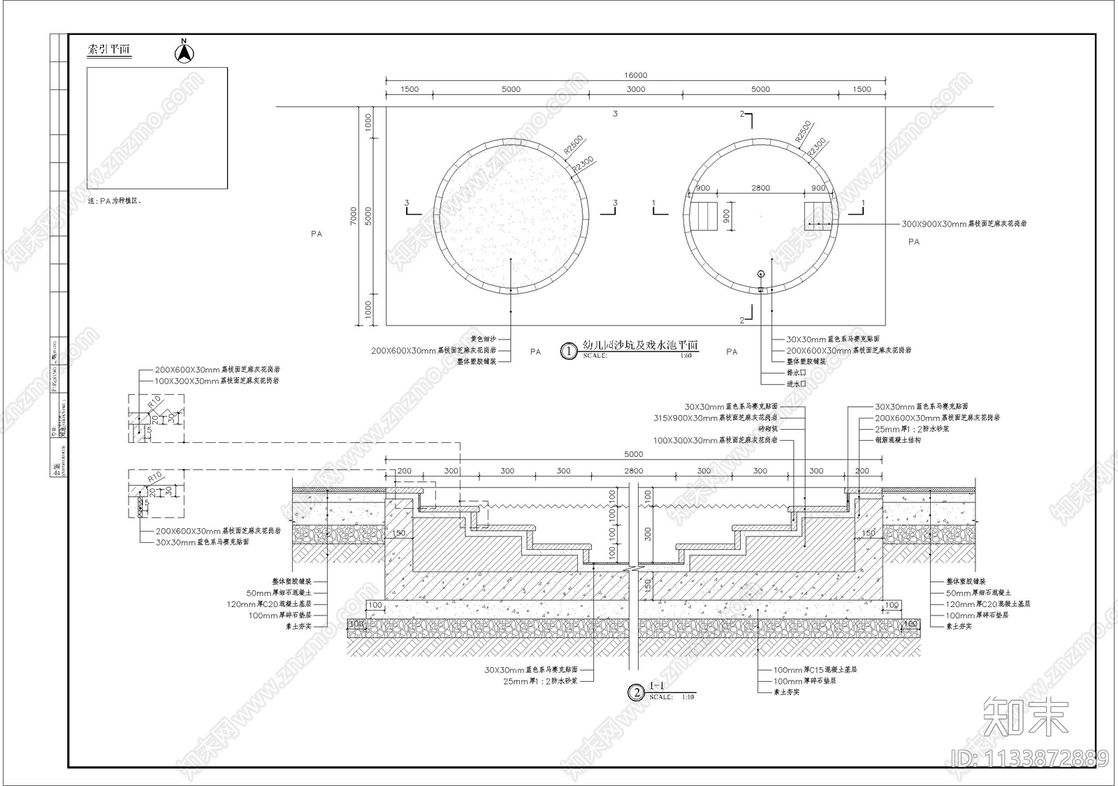
幼儿园沙坑及戏水池细部 施工图
1/
2
Previous
Next
幼儿园沙坑及戏水池细部CAD下载
ID: 1133872889
复制
上传作者
洋洋创设
上传时间
2023-04-26
文件大小
0.69M
设计风格:
现代简约
CAD版本:
CAD2004
包含文件:
CAD
授权
独家
立即下载
收藏
分享
举报
相关推荐
综合
景观小品
沙坑
亭子
廊架
景墙
综合景观小品
雨棚
围墙
挡土墙
入口