CAD频道
CAD图库
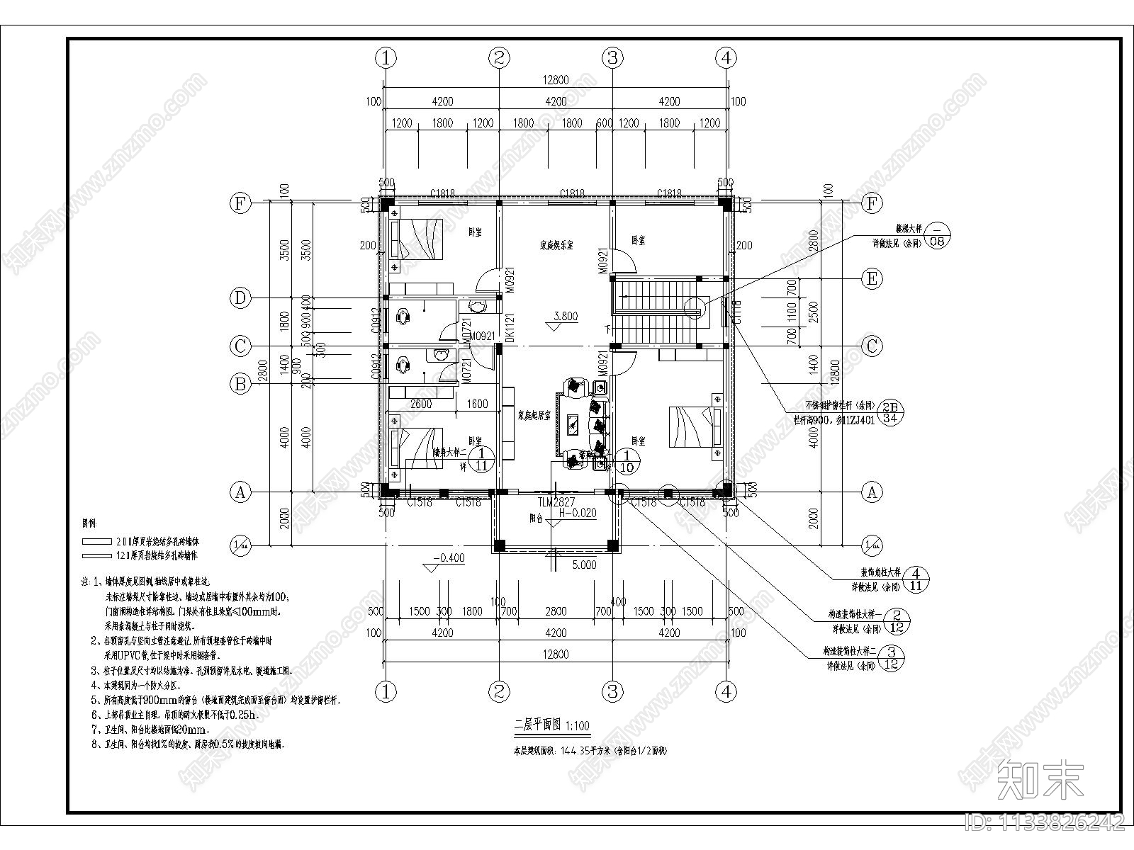
法式别墅建筑 施工图
1/
5
Previous
Next
法式别墅建筑CAD下载
ID: 1133826242
复制
上传作者
疯子
上传时间
2023-04-25
文件大小
1.85M
设计风格:
现代简约
CAD版本:
CAD2004
包含文件:
CAD
授权
独家
立即下载
收藏
分享
举报
相关推荐
综合
居住建筑
别墅建筑
住宅楼建筑
四合院
其他居住建筑
高层住宅
多层住宅
低层住宅
公寓建筑
联排住宅