CAD频道
CAD图库
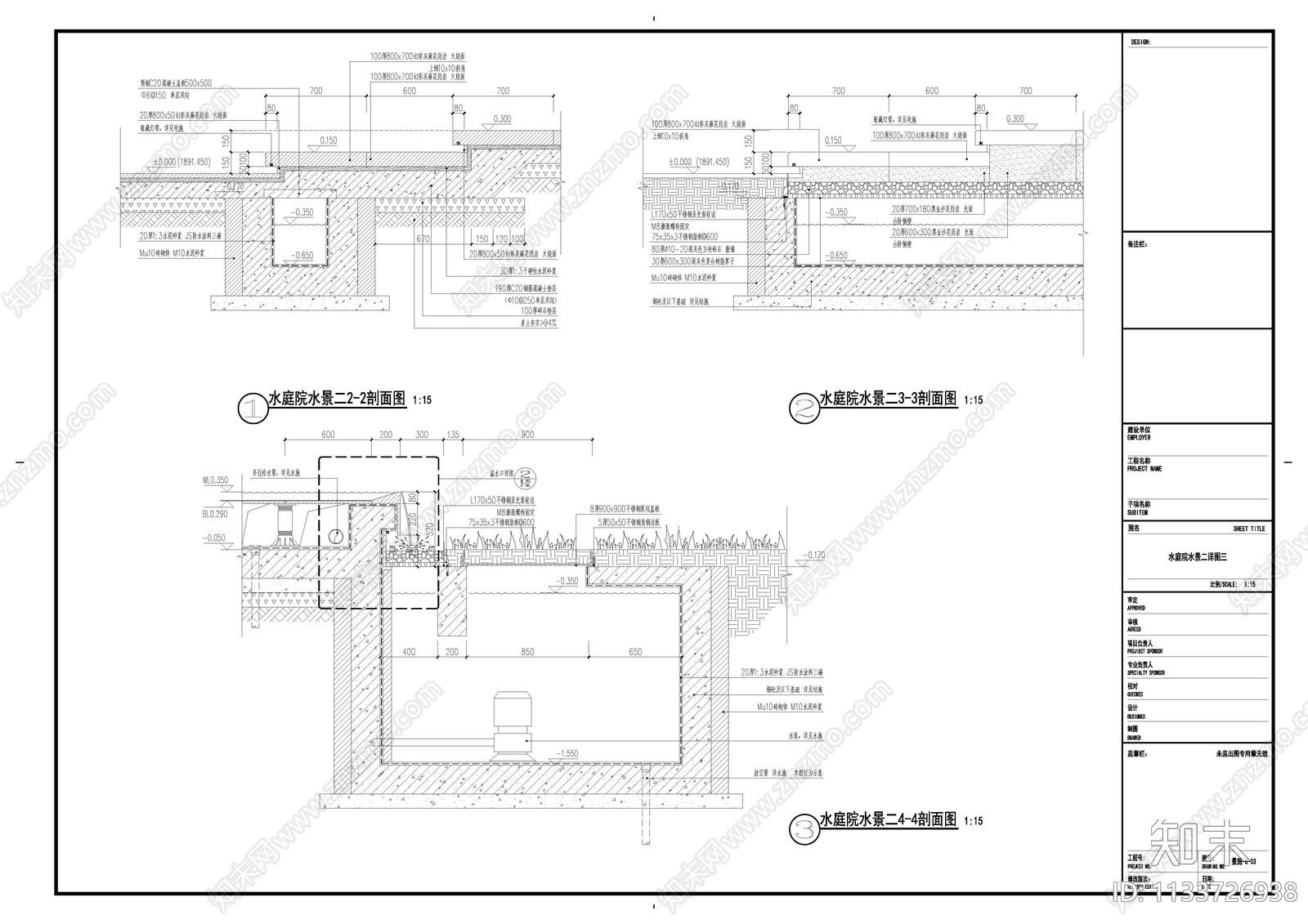
水庭院水景 施工图
1/
4
Previous
Next
水庭院水景CAD下载
ID: 1133726938
复制
上传作者
仙人掌
上传时间
2023-04-24
文件大小
2.68M
设计风格:
现代简约
CAD版本:
CAD2004
包含文件:
CAD
授权
独家
立即下载
收藏
分享
举报
相关推荐
综合
节点详图
水景
吊顶节点
墙面节点
地面节点
门节点
其他节点详图
建筑工程节点
景观小品
楼梯节点