CAD频道
CAD图库
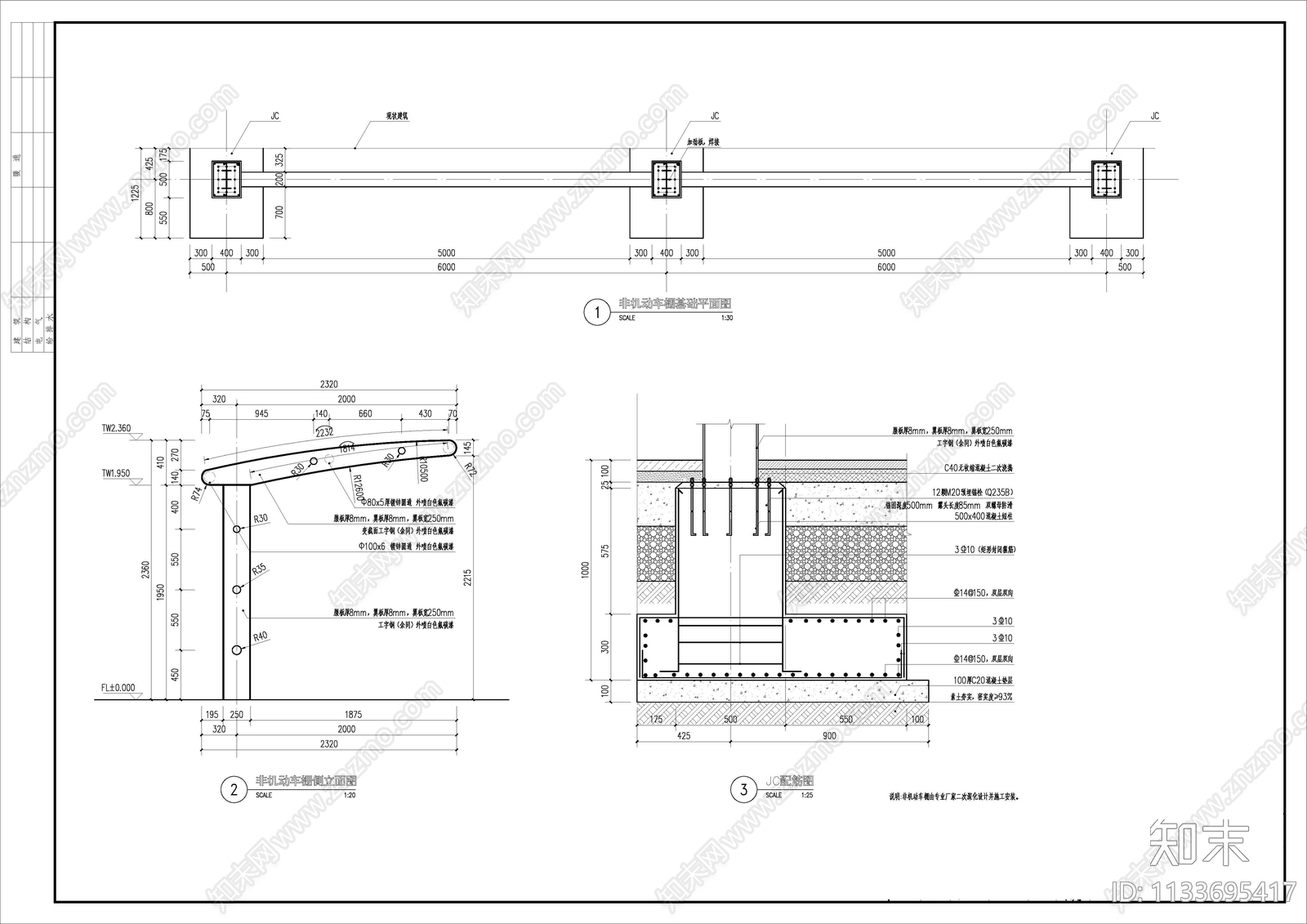
非机动车车棚详图 施工图 建筑通用节点
1/
3
Previous
Next
非机动车车棚详图CAD下载
ID: 1133695417
复制
上传作者
仙女下凡尘
上传时间
2023-04-24
文件大小
0.34M
设计风格:
现代简约
CAD版本:
CAD2014
包含文件:
CAD
授权
独家
立即下载
收藏
分享
举报
相关推荐
综合
景观小品
停车位
亭子
廊架
景墙
综合景观小品
雨棚
围墙
挡土墙
入口