CAD频道
CAD图库
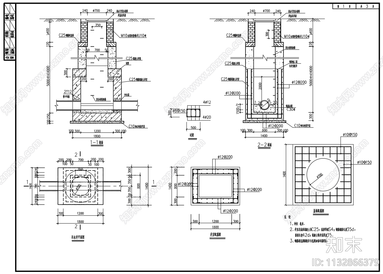
污水检查井跌水井构造 施工图 市政给排水 给排水图
1/
4
Previous
Next
污水检查井跌水井构造CAD下载
ID: 1132866379
复制
上传作者
小小鱼鱼
上传时间
2023-04-12
文件大小
0.48M
设计风格:
现代简约
CAD版本:
CAD2000
包含文件:
CAD
授权
独家
立即下载
收藏
分享
举报
相关推荐
综合
给排水图
市政给排水
景观给排水
其他给排水