CAD频道
CAD图库
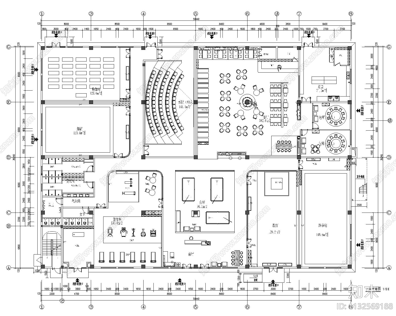
运动中心平面方案图
1/
2
Previous
Next
运动中心平面方案图CAD下载
ID: 1132569188
复制
上传作者
一二一啊
上传时间
2023-04-08
文件大小
0.73M
设计风格:
现代简约
CAD版本:
CAD2000
包含文件:
CAD
授权
独家
立即下载
收藏
分享
举报
相关推荐
综合
公共空间
活动中心
其他公共空间
公共卫生间
宿舍
门头
服务中心
会展
母婴室
档案室