CAD频道
CAD图库
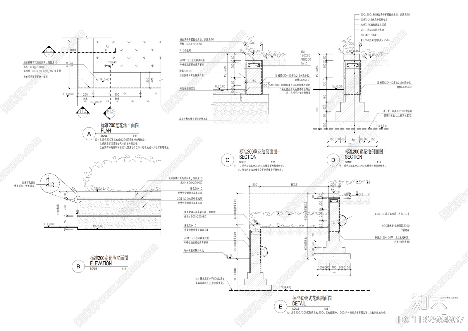
标准树池花池种植池 施工图
1/
4
Previous
Next
标准树池花池种植池CAD下载
ID: 1132564937
复制
上传作者
KH68
上传时间
2023-04-08
文件大小
0.27M
设计风格:
现代简约
CAD版本:
CAD2004
包含文件:
CAD
授权
独家
立即下载
收藏
分享
举报
相关推荐
综合
景观小品
花卉配置
亭子
廊架
景墙
综合景观小品
雨棚
围墙
挡土墙
入口