CAD频道
CAD图库
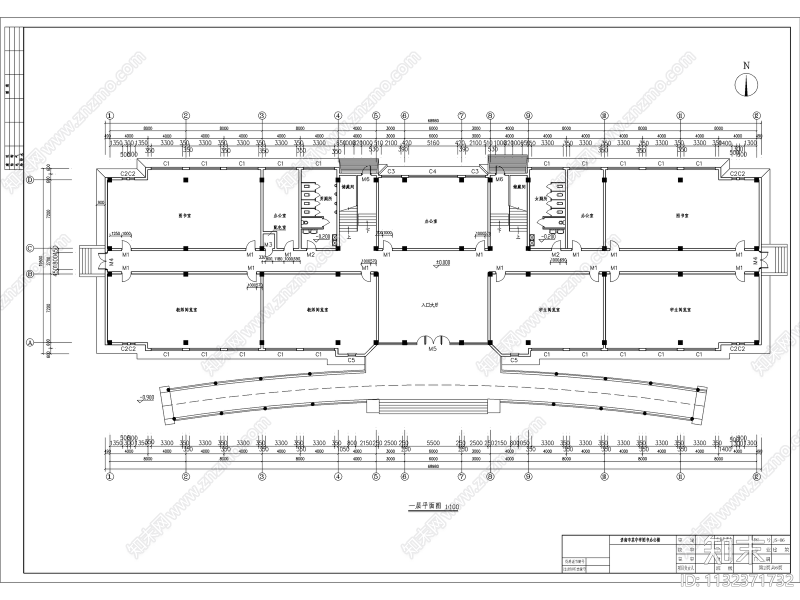
中学图书馆建筑 施工图
1/
9
Previous
Next
中学图书馆建筑CAD下载
ID: 1132371732
复制
上传作者
刺客伍六七
上传时间
2023-04-05
文件大小
2.66M
设计风格:
现代简约
CAD版本:
--
包含文件:
CAD
授权
普通
立即下载
收藏
分享
举报
相关推荐
综合
文化建筑
图书馆建筑
博物馆建筑
体育馆建筑
美术馆建筑
游泳馆建筑
教堂
其他文化建筑