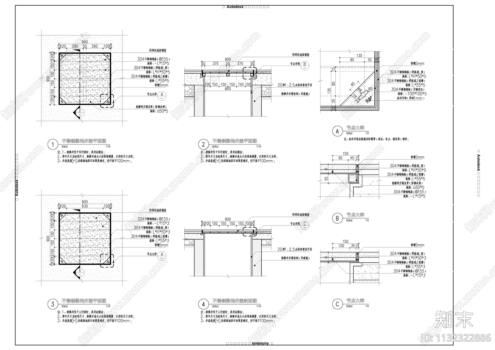
铺装隐形井盖施工图下载【ID:1132322886】

铺装隐形井盖CAD下载

ID: 1132322886
复制
上传作者
魔鬼筋肉索魔鬼筋肉索

上传时间2023-04-04

文件大小0.98M

设计风格:现代简约

CAD版本:CAD2012

包含文件:CAD

授权独家

立即下载
收藏
分享
举报
相关推荐
综合
地面节点
地面综合节点
地坪漆
地台节点
地毯节点
路面节点
门槛石节点
木地板
花岗岩