1/2
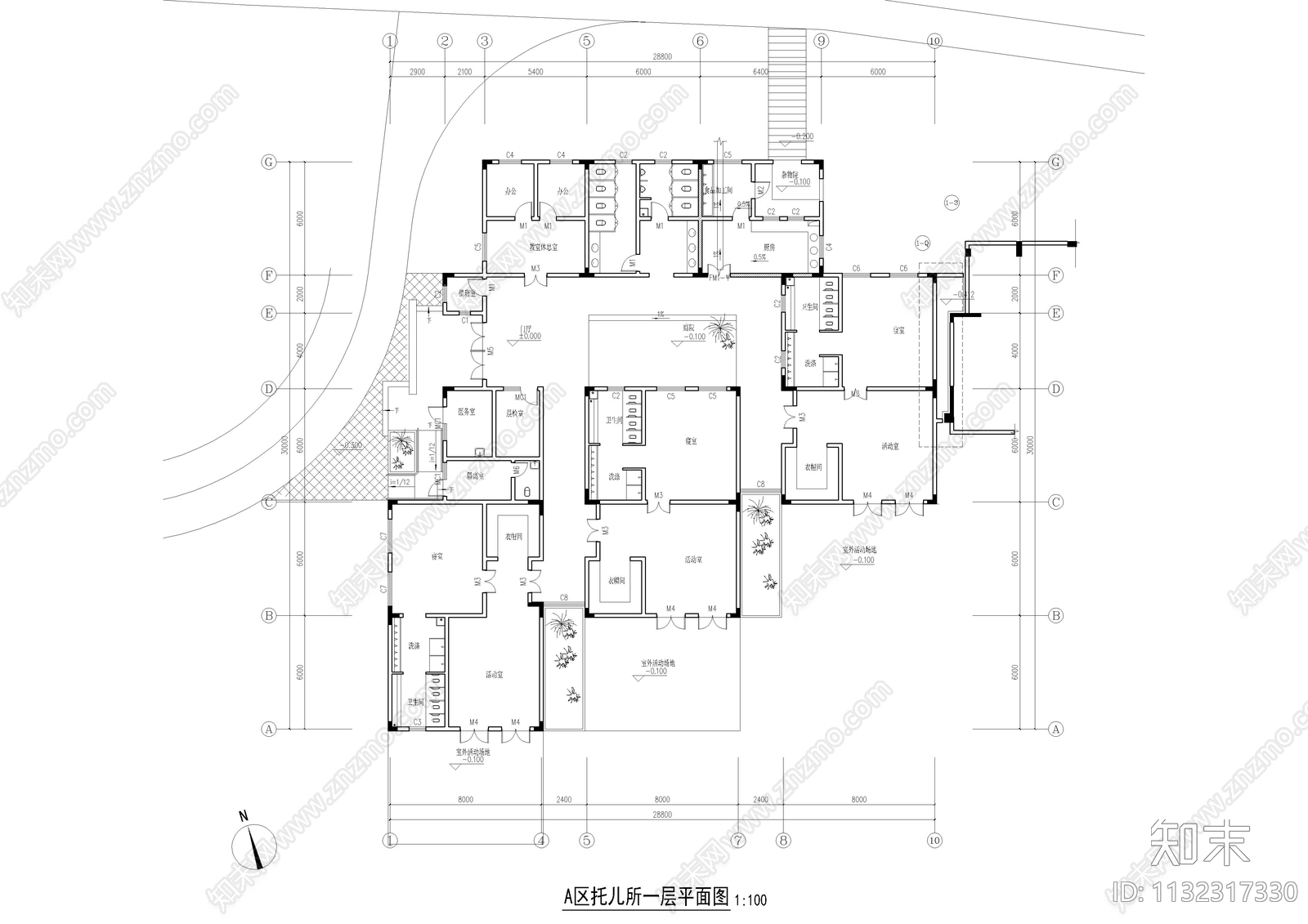
幼儿园平面布置图施工图下载【ID:1132317330】

幼儿园平面布置图CAD下载

ID: 1132317330
复制
上传作者
香香666香香666

上传时间2023-04-04

文件大小0.24M

设计风格:现代简约

CAD版本:CAD2004

包含文件:CAD

授权普通

立即下载
收藏
分享
举报
相关推荐
综合
平立面系统图
建筑平面图
平面图
立面图/剖面图
家装平面图