CAD频道
CAD图库
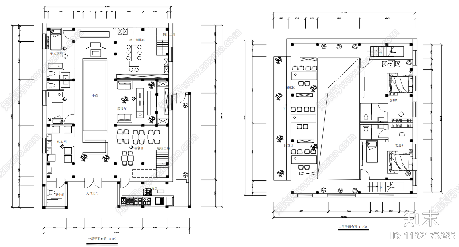
两层民宿客房室内 施工图
1/
3
Previous
Next
两层民宿客房室内CAD下载
ID: 1132173385
复制
上传作者
湖
上传时间
2023-04-03
文件大小
1.05M
设计风格:
现代简约
CAD版本:
CAD2004
包含文件:
CAD
授权
独家
立即下载
收藏
分享
举报
相关推荐
综合
工装
民宿
办公空间
教育空间
文化空间
商业空间
餐饮空间
休闲娱乐空间
其他工装空间
展厅