1/2


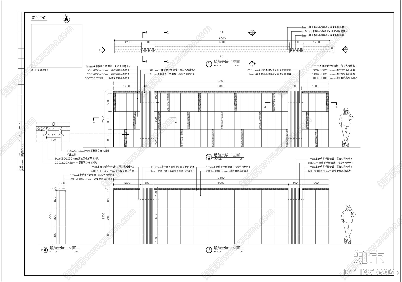
特色多石材拼接景墙细部CAD下载
ID: 1132169025
复制
上传作者
洋洋创设
洋洋创设上传时间2023-04-03
文件大小0.81M
设计风格:现代简约
CAD版本:CAD2004
包含文件:CAD
授权独家
立即下载
收藏
分享
举报
相关推荐
综合
景观图库
景墙图库
景观雕塑图库
座凳图库
假山水景图库
围墙图库
树池图库
亭子图库
水井图库
公墓图库


洋洋创设上传时间2023-04-03
文件大小0.81M
设计风格:现代简约
CAD版本:CAD2004
包含文件:CAD
授权独家