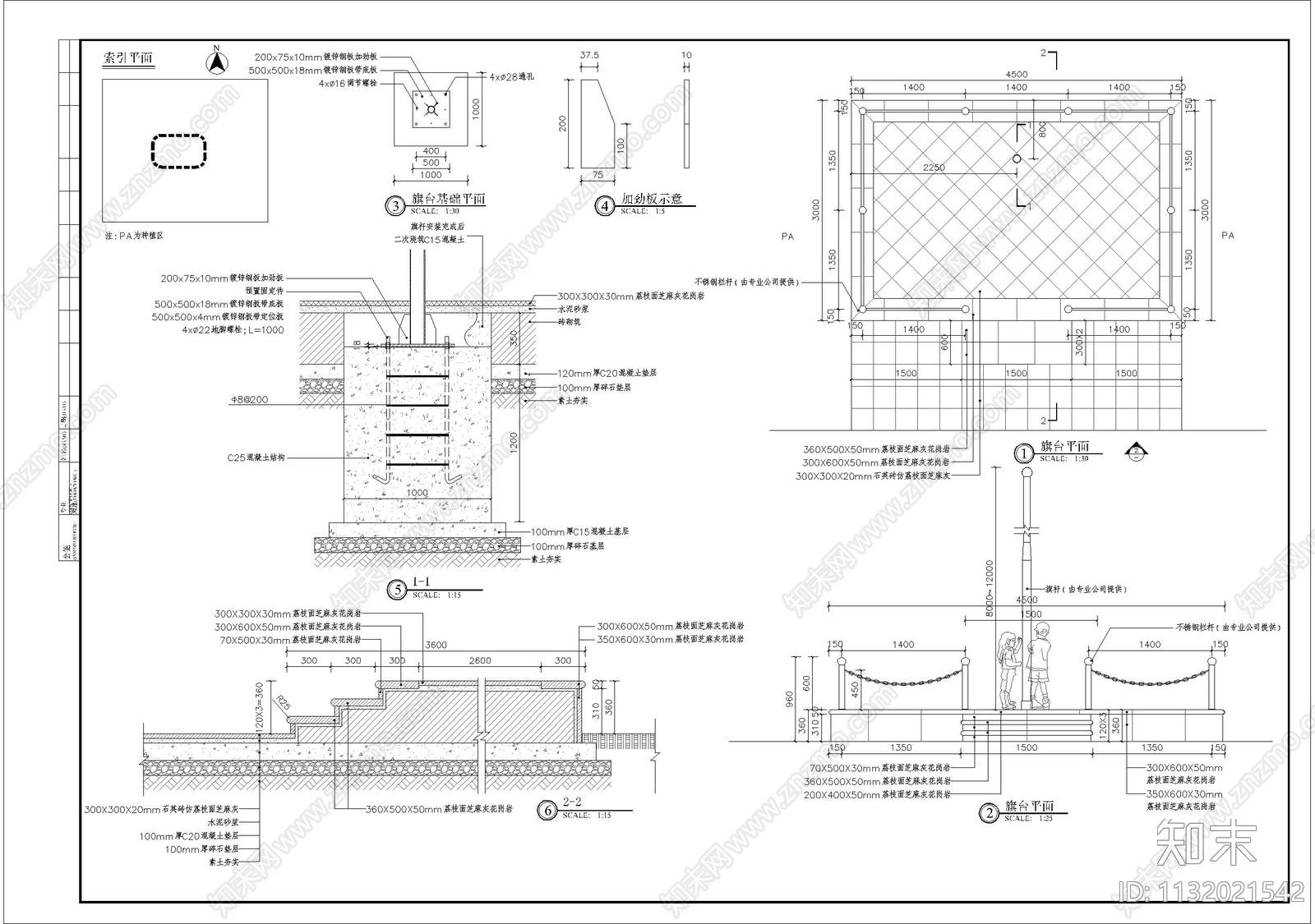
幼儿园旗台细部施工图下载【ID:1132021542】

幼儿园旗台细部CAD下载

ID: 1132021542
复制
上传作者
洋洋创设洋洋创设

上传时间2023-03-31

文件大小0.45M

设计风格:现代简约

CAD版本:CAD2004

包含文件:CAD

授权独家

立即下载
收藏
分享
举报
相关推荐
综合
景观小品
综合景观小品
亭子
廊架
景墙
雨棚
围墙
挡土墙
入口
景观坐凳