CAD频道
CAD图库
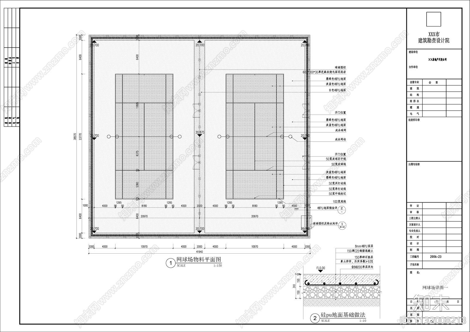
篮球羽毛球门球网球场 施工图
1/
8
Previous
Next
篮球羽毛球门球网球场CAD下载
ID: 1132008213
复制
上传作者
CCX
上传时间
2023-03-31
文件大小
2.13M
设计风格:
现代简约
CAD版本:
CAD2014
包含文件:
CAD
授权
普通
立即下载
收藏
分享
举报
相关推荐
综合
运动场
网球场
篮球场
其他运动场地
操场
足球场
羽毛球场
看台
高尔夫