CAD频道
CAD图库
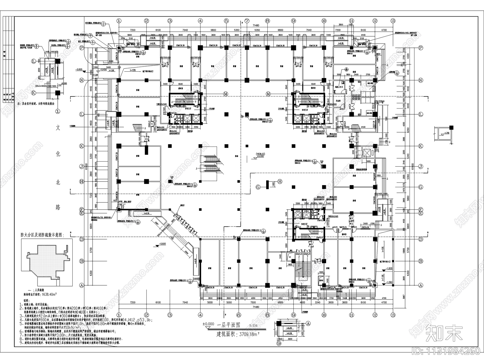
多层商场建筑 施工图
1/
3
Previous
Next
多层商场建筑CAD下载
ID: 1131984260
复制
上传作者
刺客伍六七
上传时间
2023-03-30
文件大小
1.91M
设计风格:
现代简约
CAD版本:
--
包含文件:
CAD
授权
普通
立即下载
收藏
分享
举报
相关推荐
综合
平立面系统图
建筑平面图
平面图
立面图/剖面图
家装平面图