1/9
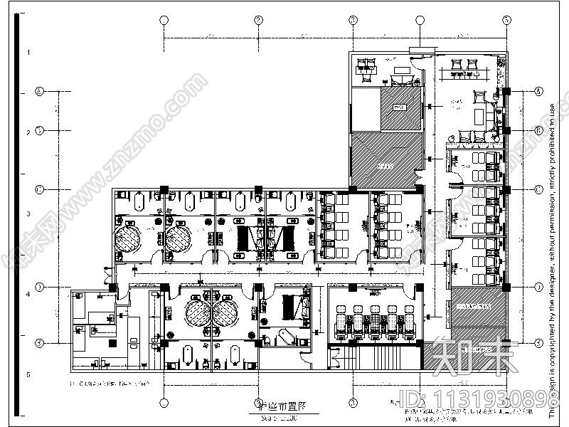
北京足疗养生会所设计施工图(含效果图)施工图下载【ID:1131930898】

北京足疗养生会所设计CAD(含效果图)CAD下载

ID: 1131930898
复制
上传作者
樱桃小丸子樱桃小丸子

上传时间2017-09-04

文件大小59.96M

设计风格:--

CAD版本:--

包含文件:CAD

授权普通

立即下载
收藏
分享
举报
相关推荐
综合
休闲娱乐空间
会所
美容院
理发店
电影院
茶馆
健身房
KTV
酒吧
网吧