1/8


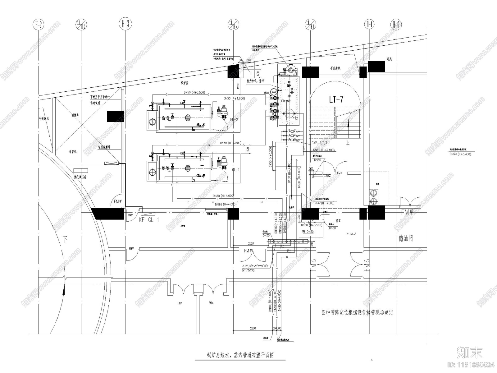
京基金融中心酒店蒸汽锅炉房设计CADCAD下载
ID: 1131880624
复制
上传作者
樱桃小丸子
樱桃小丸子上传时间2020-11-03
文件大小6.05M
设计风格:--
CAD版本:--
包含文件:CAD
授权普通
立即下载
收藏
分享
举报
相关推荐
综合
机电工程
暖通空调
给排水图
水处理
电气图
电气工程节点
消防设施
机械设备
其他机电图纸
建筑给排水


樱桃小丸子上传时间2020-11-03
文件大小6.05M
设计风格:--
CAD版本:--
包含文件:CAD
授权普通