1/8
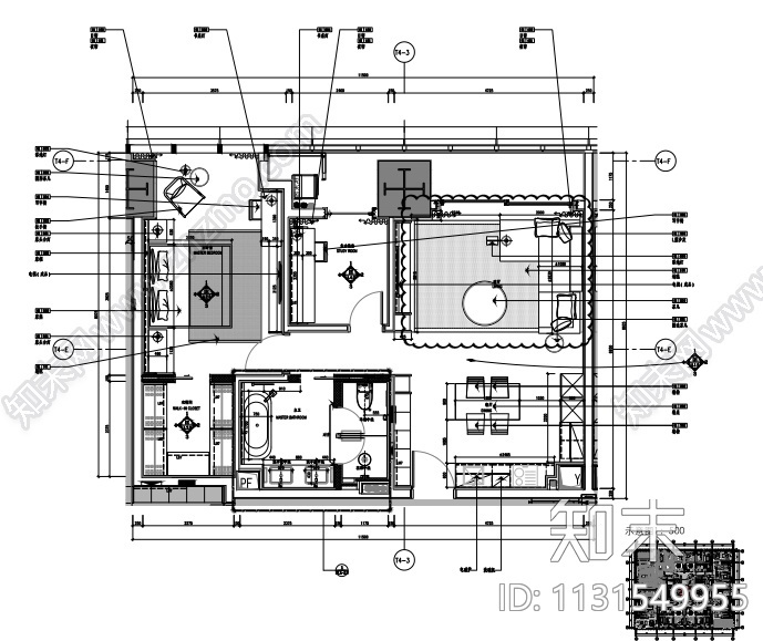
知名地产公寓A户型样板间室内装修施工图+效果图+物料表施工图下载【ID:1131549955】

知名地产公寓A户型样板间室内装修CAD+效果图+物...

ID: 1131549955
复制
上传作者
樱桃小丸子樱桃小丸子

上传时间2019-08-20

文件大小176.84M

设计风格:--

CAD版本:--

包含文件:CAD

授权普通

立即下载
收藏
分享
举报
相关推荐
综合
公寓
loft公寓
单身公寓
复式公寓
酒店公寓