1/3


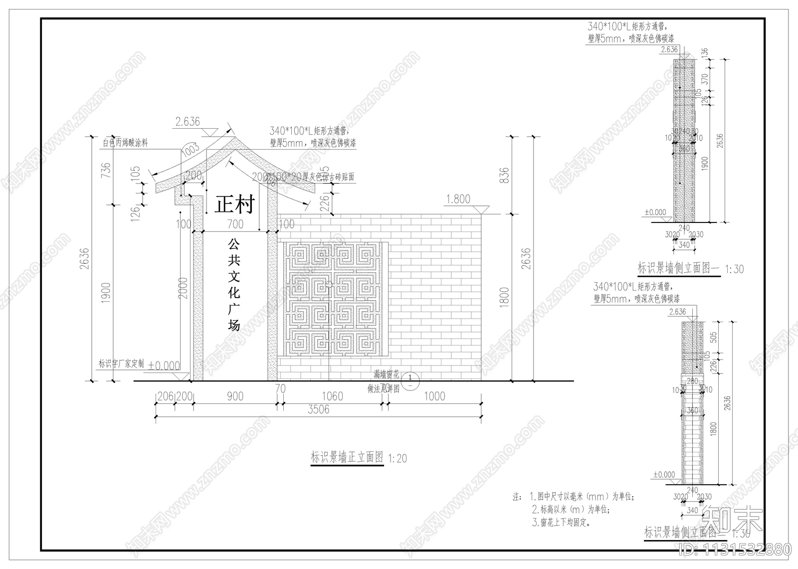
乡村振兴新农村入口标识小景墙CAD下载
ID: 1131532880
复制
上传作者
设计院的吃藕狗
设计院的吃藕狗上传时间2023-03-24
文件大小2.96M
设计风格:--
CAD版本:CAD2010
包含文件:CAD
授权独家
立即下载
收藏
分享
举报
相关推荐
综合
景观图库
景墙图库
景观雕塑图库
座凳图库
假山水景图库
围墙图库
树池图库
亭子图库
水井图库
公墓图库


设计院的吃藕狗上传时间2023-03-24
文件大小2.96M
设计风格:--
CAD版本:CAD2010
包含文件:CAD
授权独家