CAD频道
CAD图库
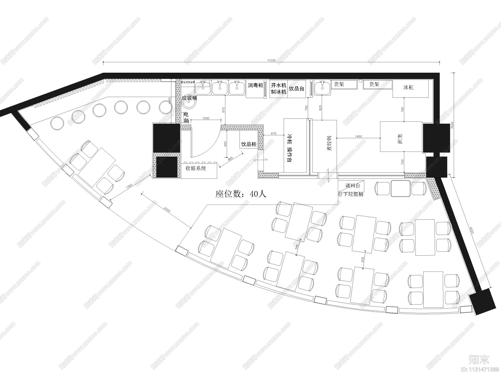
江苏80㎡水饺餐厅室内装修施工图 效果图
1/
10
Previous
Next
江苏80㎡水饺餐厅室内装修CADCAD下载
ID: 1131471388
复制
上传作者
樱桃小丸子
上传时间
2021-01-04
文件大小
29.86M
设计风格:
--
CAD版本:
--
包含文件:
CAD
授权
普通
立即下载
收藏
分享
举报
相关推荐
综合
餐饮空间
快餐店
中餐厅
西餐厅
自助餐厅
茶餐厅
其他餐饮空间
食堂
奶茶店
咖啡厅