
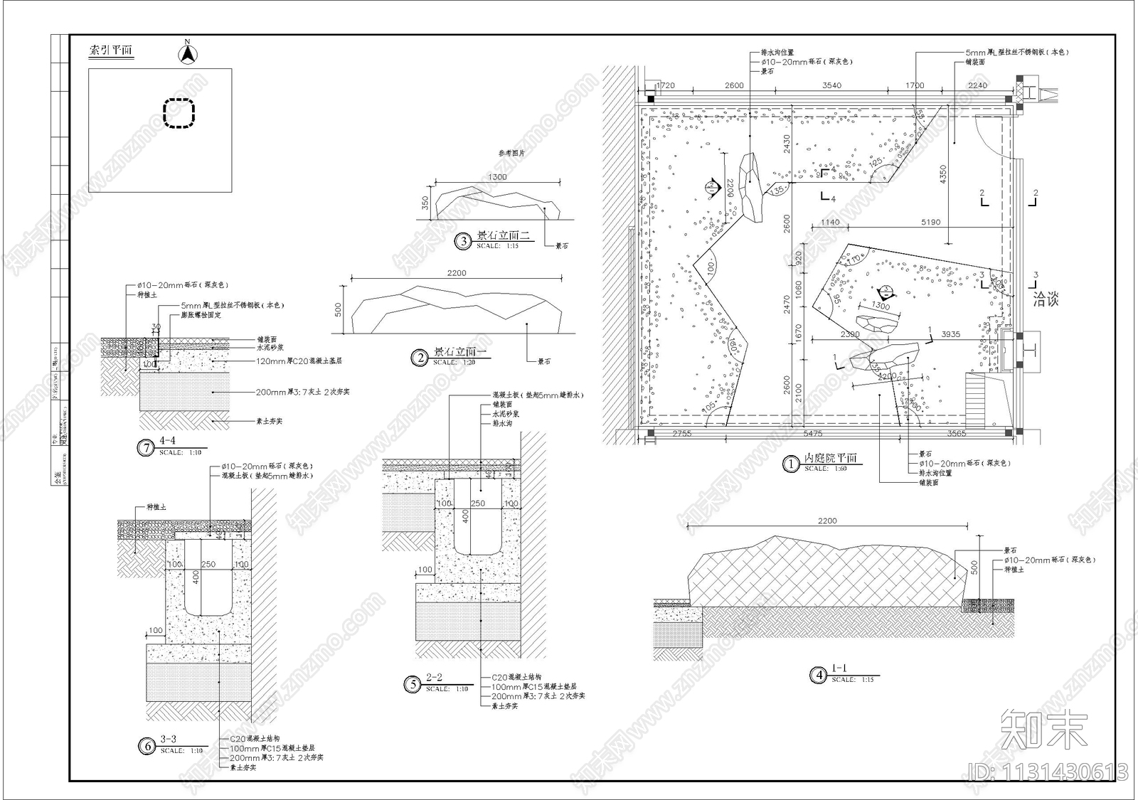
内庭院细部CAD下载
ID: 1131430613
复制
上传作者
洋洋创设
洋洋创设上传时间2023-03-23
文件大小0.69M
设计风格:现代简约
CAD版本:CAD2004
包含文件:CAD
授权独家
立即下载
收藏
分享
举报
相关推荐
综合
居住区景观
庭院
屋顶花园
示范区景观
售楼处景观
小区主入口
小区中心广场
宅间绿地
社区儿童区
社区健身区

洋洋创设上传时间2023-03-23
文件大小0.69M
设计风格:现代简约
CAD版本:CAD2004
包含文件:CAD
授权独家