CAD频道
CAD图库
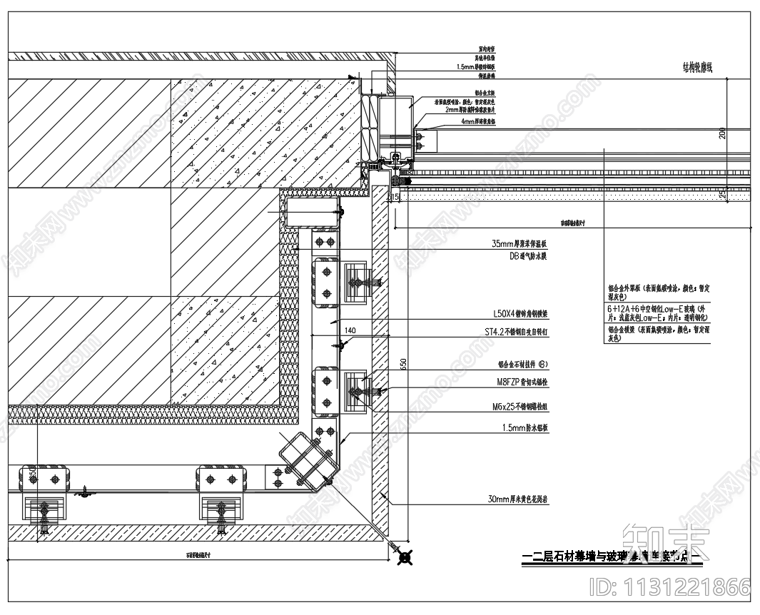
开放式背栓石材幕墙节点构造图 施工图 节点 结构节点图
1/
10
Previous
Next
开放式背栓石材幕墙节点构造图CAD下载
ID: 1131221866
复制
上传作者
小小鱼鱼
上传时间
2023-03-20
文件大小
1.44M
设计风格:
--
CAD版本:
CAD2000
包含文件:
CAD
授权
独家
立即下载
收藏
分享
举报
相关推荐
综合
结构节点图
幕墙结构节点
桁架
钢结构节点
混凝土节点
转换层
其他结构设计