1/10
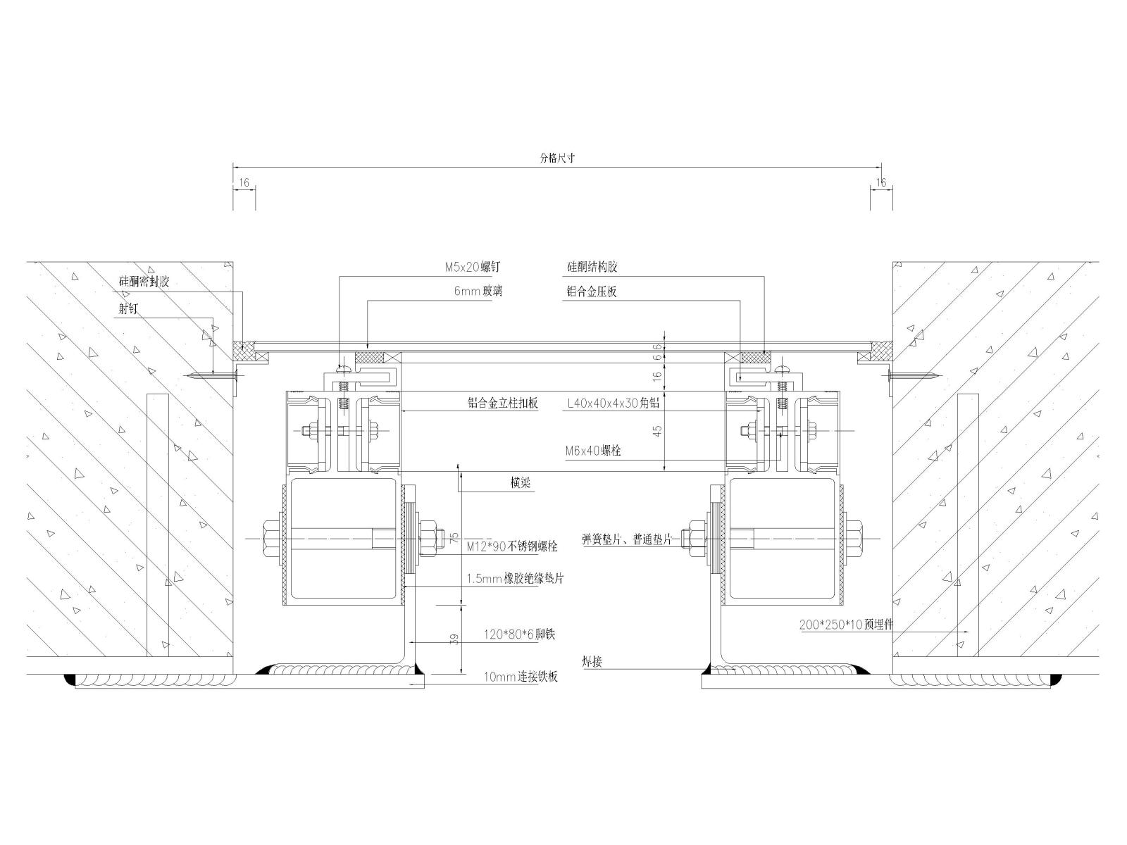
玻璃幕墙,隔断,转角,隐框明框,吊挂节点详图施工图下载【ID:1131220352】

玻璃幕墙,隔断,转角,隐框明框,吊挂节点详图CAD...

ID: 1131220352
复制
上传作者
樱桃小丸子樱桃小丸子

上传时间2020-08-04

文件大小12.3M

设计风格:--

CAD版本:--

包含文件:CAD

授权普通

立即下载
收藏
分享
举报
相关推荐
综合
家具节点详图
综合家具节点
吧台节点
壁炉节点
柜体节点
卡座节点
前台节点