1/7


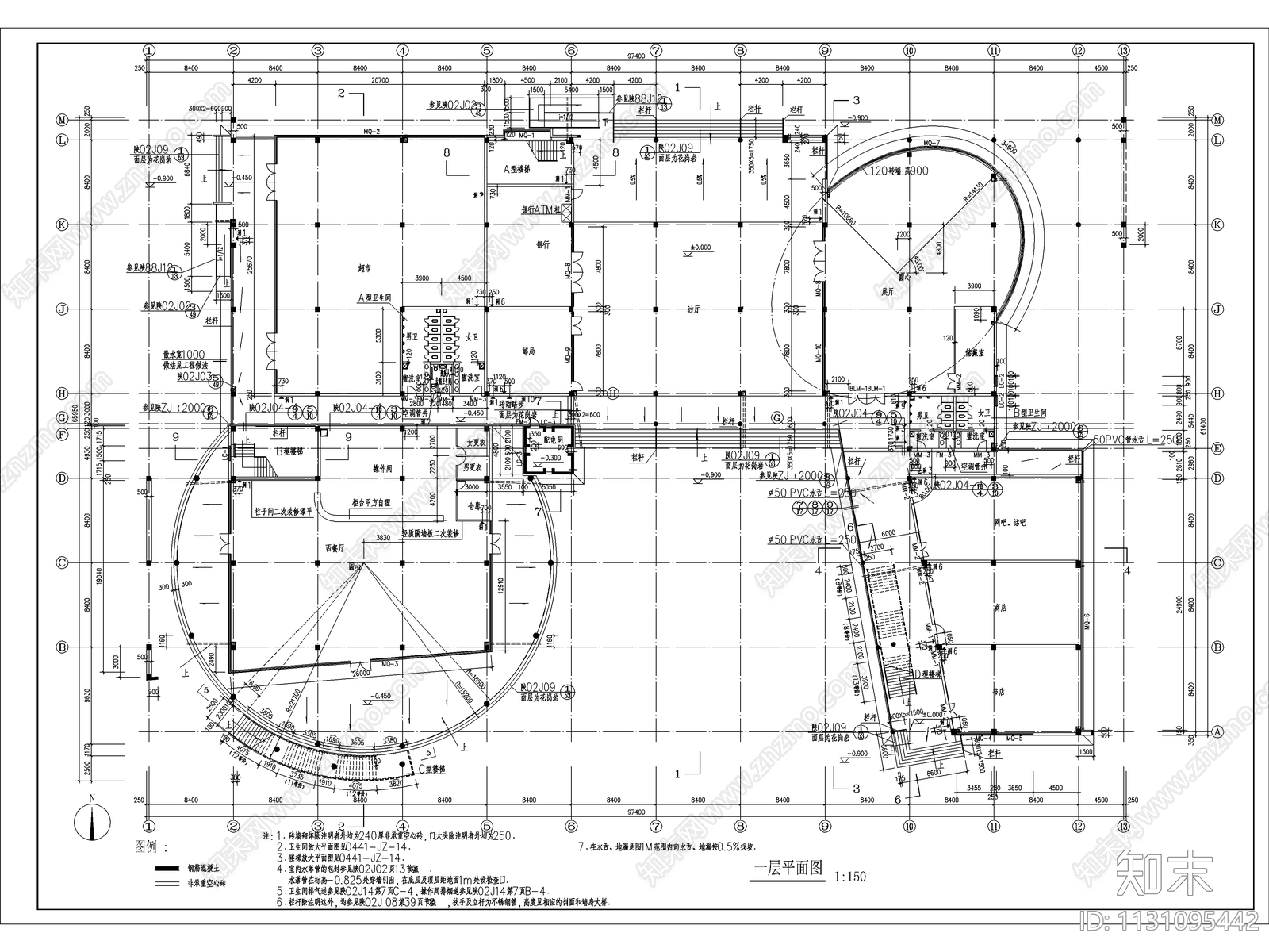
三层某学院学生活动中心建筑CAD下载
ID: 1131095442
复制
上传作者
刺客伍六七
刺客伍六七上传时间2023-03-18
文件大小2.16M
设计风格:现代简约
CAD版本:CAD2014
包含文件:CAD
授权普通
立即下载
收藏
分享
举报
相关推荐
综合
公共空间
活动中心
其他公共空间
公共卫生间
宿舍
门头
服务中心
会展
母婴室
档案室


刺客伍六七上传时间2023-03-18
文件大小2.16M
设计风格:现代简约
CAD版本:CAD2014
包含文件:CAD
授权普通