CAD频道
CAD图库
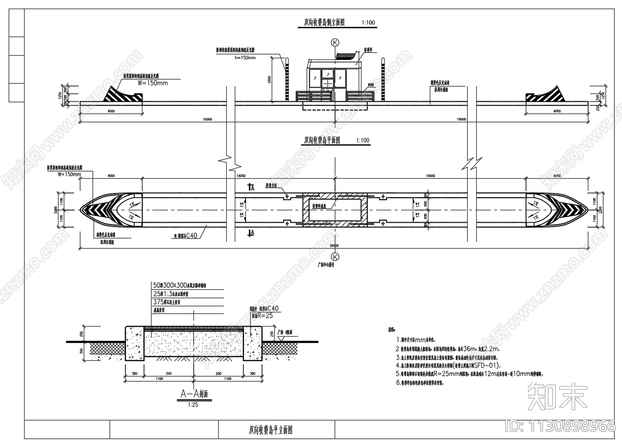
高速公路双向收费站 施工图
1/
3
Previous
Next
高速公路双向收费站CAD下载
ID: 1130898966
复制
上传作者
小小鱼鱼
上传时间
2023-03-15
文件大小
0.1M
设计风格:
--
CAD版本:
CAD2000
包含文件:
CAD
授权
独家
立即下载
收藏
分享
举报
相关推荐
综合
交通建筑
其他交通建筑
机场建筑
客运站
加油站
服务区
驿站
车站