CAD频道
CAD图库
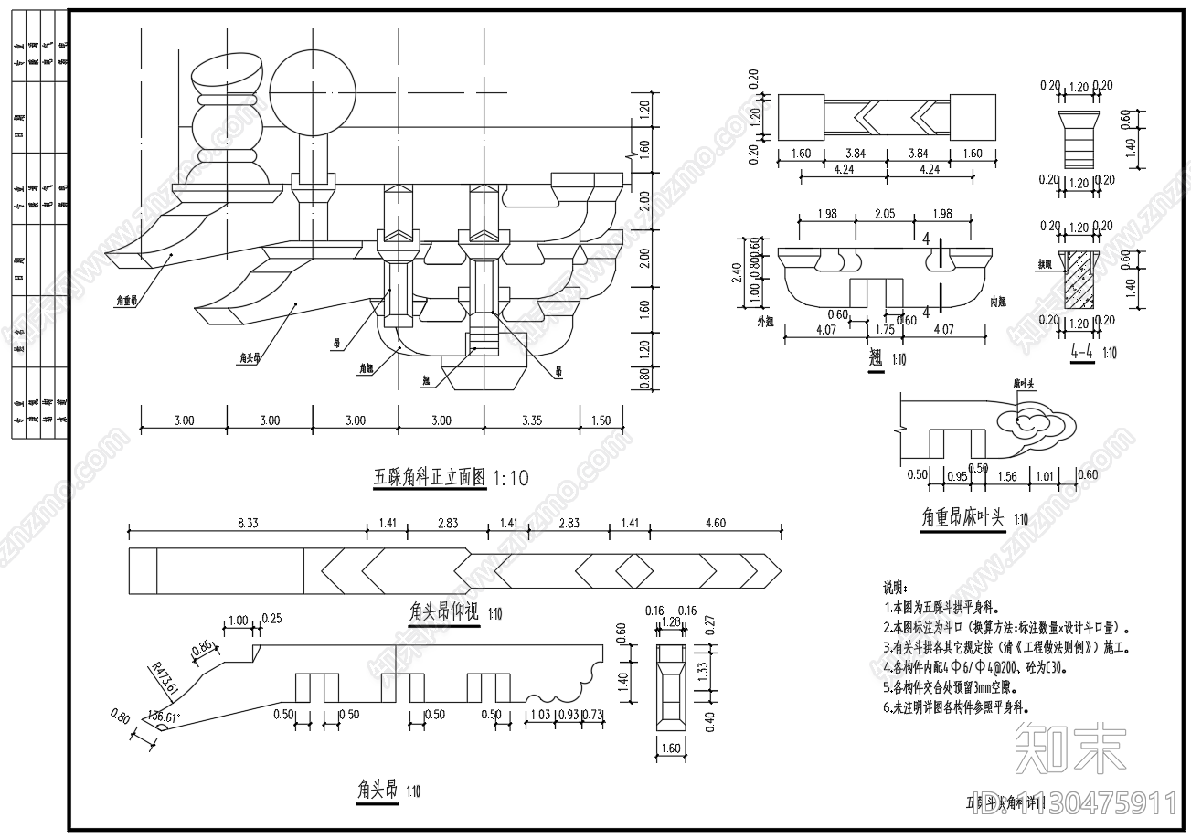
五踩斗拱构造图 施工图 建筑通用节点 建筑工程节点
1/
5
Previous
Next
五踩斗拱构造图CAD下载
ID: 1130475911
复制
上传作者
小小鱼鱼
上传时间
2023-03-08
文件大小
0.22M
设计风格:
--
CAD版本:
CAD2000
包含文件:
CAD
授权
独家
立即下载
收藏
分享
举报
相关推荐
综合
建筑工程节点
斗拱节点
屋顶
柱子节点
吊装节点
楼板节点
女儿墙节点
塔吊节点
天窗节点
屋檐节点