1/5


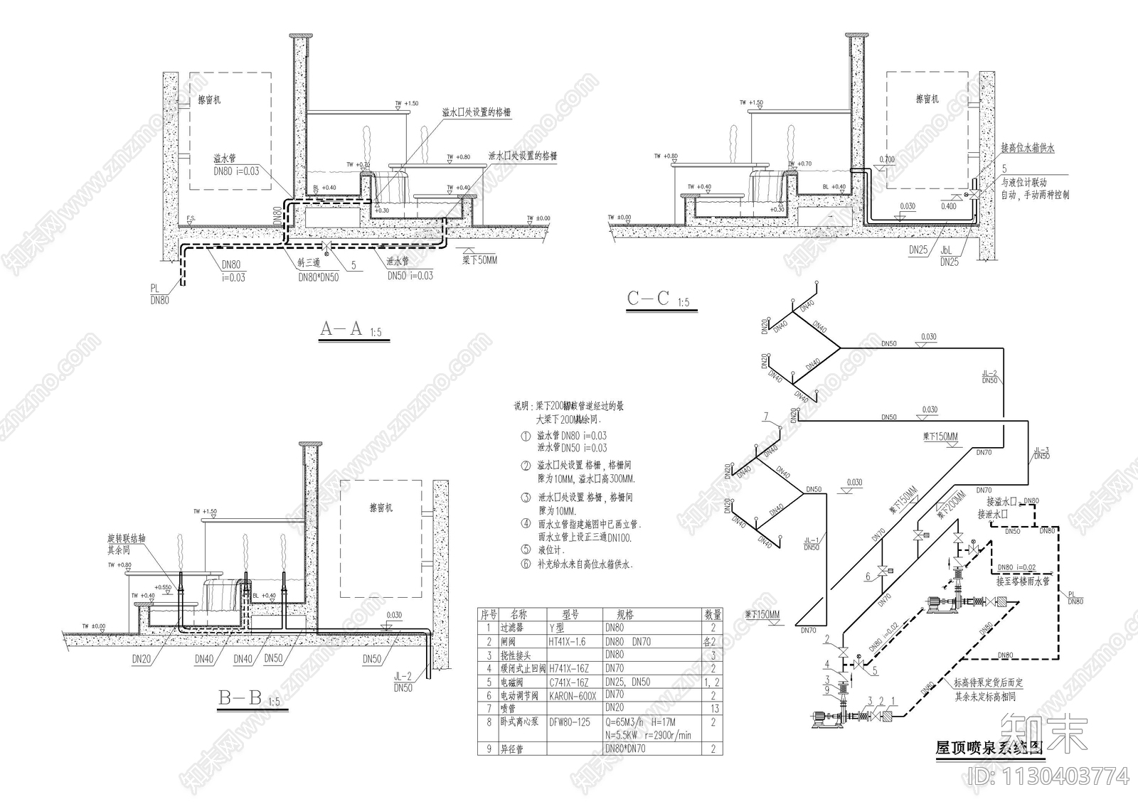
水系统屋顶喷泉系统CAD下载
ID: 1130403774
复制
上传作者
小趴菜园
小趴菜园上传时间2023-03-07
文件大小1.62M
设计风格:--
CAD版本:CAD2004
包含文件:CAD
授权普通
立即下载
收藏
分享
举报
相关推荐
综合
建筑工程节点
屋顶
柱子节点
吊装节点
斗拱节点
楼板节点
女儿墙节点
塔吊节点
天窗节点
屋檐节点


小趴菜园上传时间2023-03-07
文件大小1.62M
设计风格:--
CAD版本:CAD2004
包含文件:CAD
授权普通