CAD频道
CAD图库
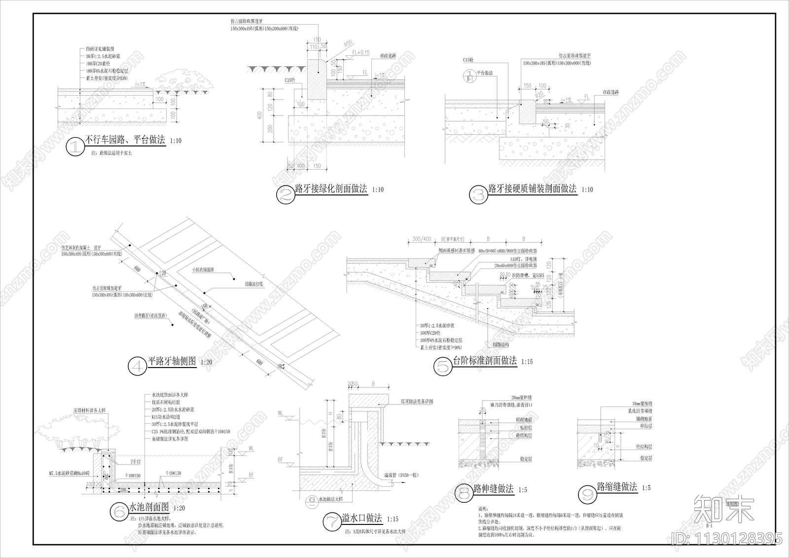
景观铺装通用剖面 台阶 侧石 施工图
1/
2
Previous
Next
景观铺装通用剖面CAD下载
ID: 1130128395
复制
上传作者
coco
上传时间
2023-03-02
文件大小
1.63M
设计风格:
现代简约
CAD版本:
CAD2014
包含文件:
CAD
授权
普通
立即下载
收藏
分享
举报
相关推荐
综合
景观小品
铺装
亭子
廊架
景墙
综合景观小品
雨棚
围墙
挡土墙
入口