
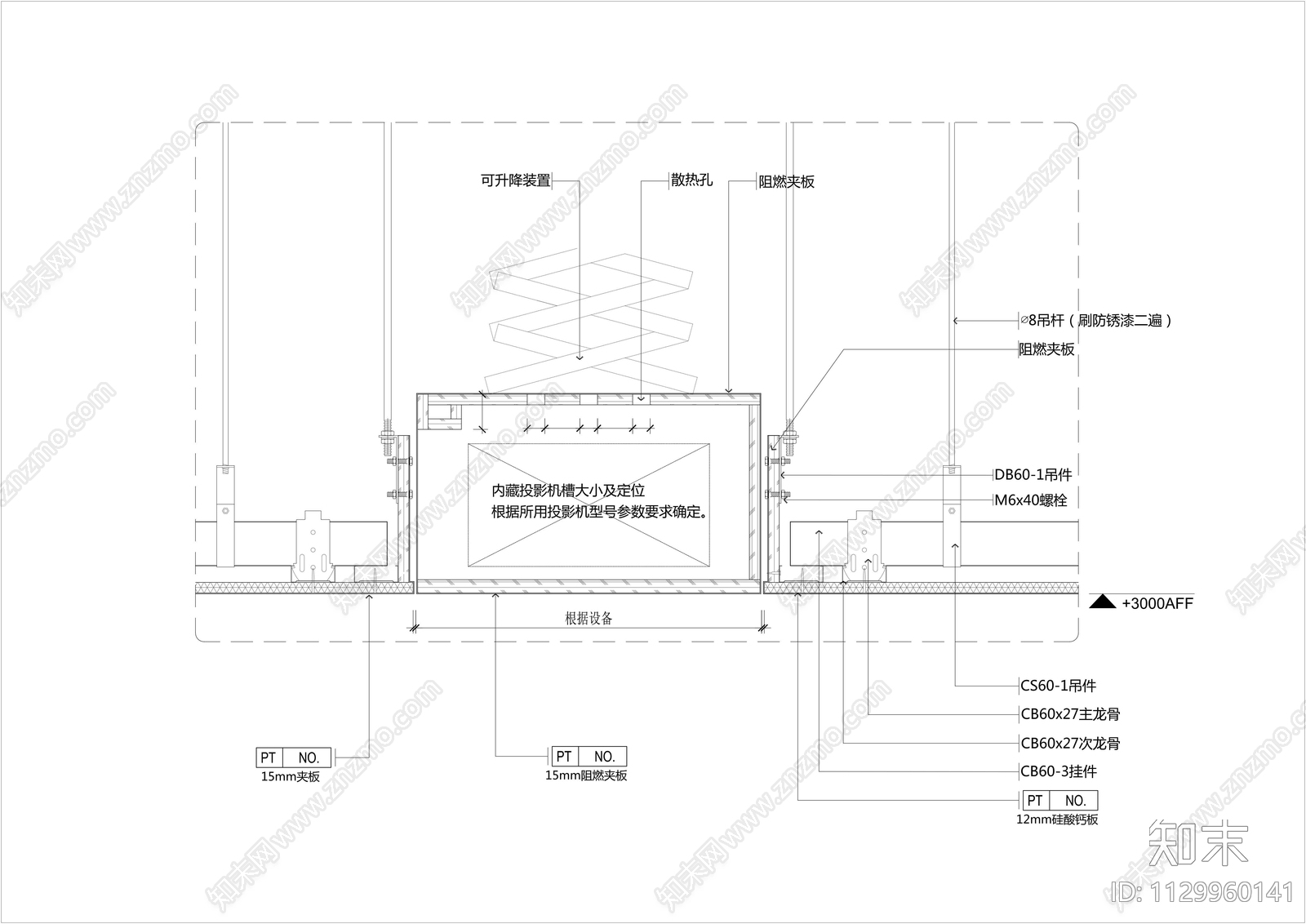
天花暗藏投影幕大样图CAD下载
ID: 1129960141
复制
上传作者
舉重的榨汁機
舉重的榨汁機上传时间2023-02-28
文件大小0.1M
设计风格:--
CAD版本:CAD2017
包含文件:CAD
授权普通
立即下载
收藏
分享
举报
相关推荐
综合
节点详图
其他节点详图
吊顶节点
墙面节点
地面节点
门节点
建筑工程节点
景观小品
楼梯节点
水景

舉重的榨汁機上传时间2023-02-28
文件大小0.1M
设计风格:--
CAD版本:CAD2017
包含文件:CAD
授权普通