1/3


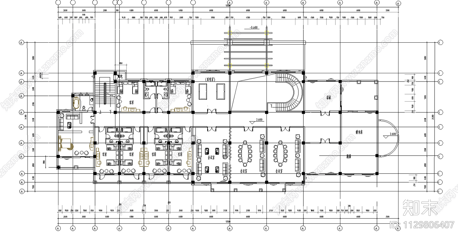
某小区会所建筑CAD下载
ID: 1129806407
复制
上传作者
CAD图纸大全
CAD图纸大全上传时间2023-02-25
文件大小1.48M
设计风格:--
CAD版本:CAD2014
包含文件:CAD
授权普通
立即下载
收藏
分享
举报
相关推荐
综合
商业建筑
其他商业建筑
售楼处建筑
商业街
商业综合体
农贸市场建筑
美食街
购物中心
餐饮建筑
娱乐建筑


CAD图纸大全上传时间2023-02-25
文件大小1.48M
设计风格:--
CAD版本:CAD2014
包含文件:CAD
授权普通