1/5


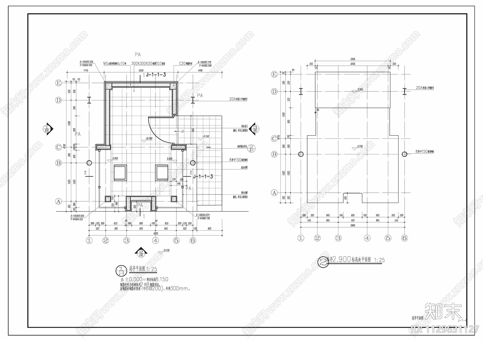
现代简约居住区门口岗亭CAD下载
ID: 1129631127
复制
上传作者
生椰拿铁
生椰拿铁上传时间2023-02-22
文件大小0.54M
设计风格:现代简约
CAD版本:CAD2004
包含文件:CAD
授权普通
立即下载
收藏
分享
举报
相关推荐
综合
建筑
其他建筑
居住建筑
办公工业建筑
商业建筑
酒店民宿建筑
交通建筑
规划设计
古建
教育建筑


生椰拿铁上传时间2023-02-22
文件大小0.54M
设计风格:现代简约
CAD版本:CAD2004
包含文件:CAD
授权普通