CAD频道
CAD图库
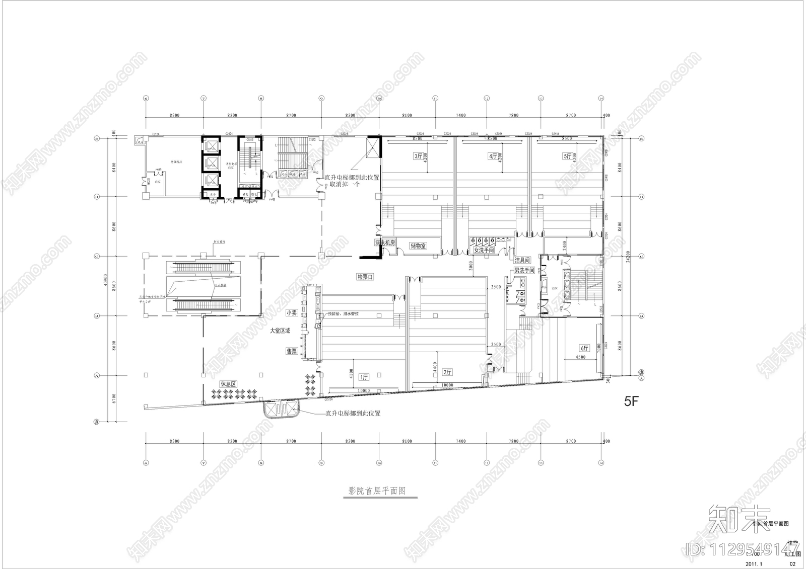
大型电影院建筑 施工图
1/
6
Previous
Next
大型电影院建筑CAD下载
ID: 1129549147
复制
上传作者
DJ-SJ
上传时间
2023-02-21
文件大小
0.7M
设计风格:
--
CAD版本:
CAD2010
包含文件:
CAD
授权
独家
立即下载
收藏
分享
举报
相关推荐
综合
休闲娱乐空间
电影院
会所
美容院
理发店
茶馆
健身房
KTV
酒吧
网吧