CAD频道
CAD图库
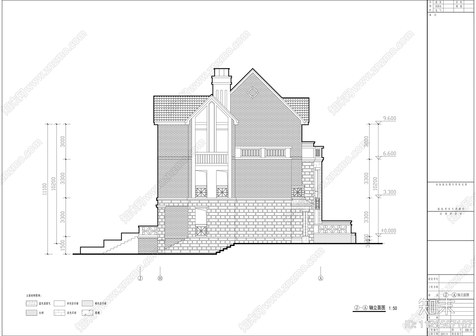
三层坡屋顶带阁楼联排式别墅 施工图 别墅建筑
1/
10
Previous
Next
三层坡屋顶带阁楼联排式别墅CAD下载
ID: 1129507107
复制
上传作者
常威打来福
上传时间
2023-02-20
文件大小
0.71M
设计风格:
--
CAD版本:
CAD2004
包含文件:
CAD
授权
独家
立即下载
收藏
分享
举报
相关推荐
综合
家装局部空间
阁楼
客厅
餐厅
厨房
卫生间
卧室
书房
衣帽间
客餐厅