CAD频道
CAD图库
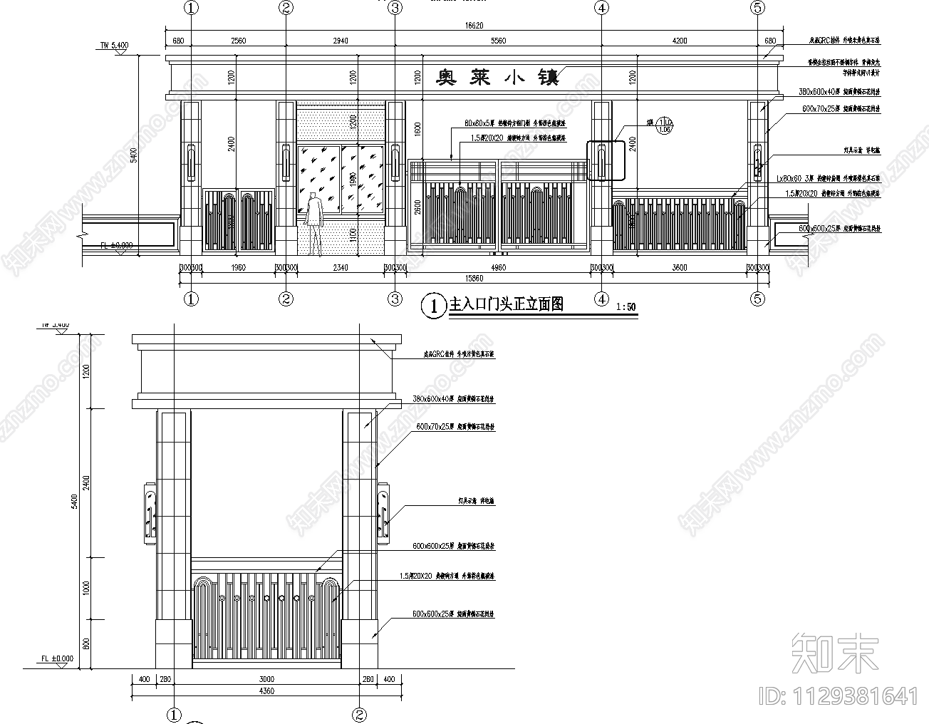
入口大门详图 施工图 通用节点
1/
3
Previous
Next
入口大门详图CAD下载
ID: 1129381641
复制
上传作者
哗哗的贝贝
上传时间
2023-02-18
文件大小
0.78M
设计风格:
欧式简约
CAD版本:
CAD2012
包含文件:
CAD
授权
普通
立即下载
收藏
分享
举报
相关推荐
综合
门节点
综合门节点
入户门
铁艺大门
月洞门
玻璃门节点
推拉门节点
隐形门节点