CAD频道
CAD图库
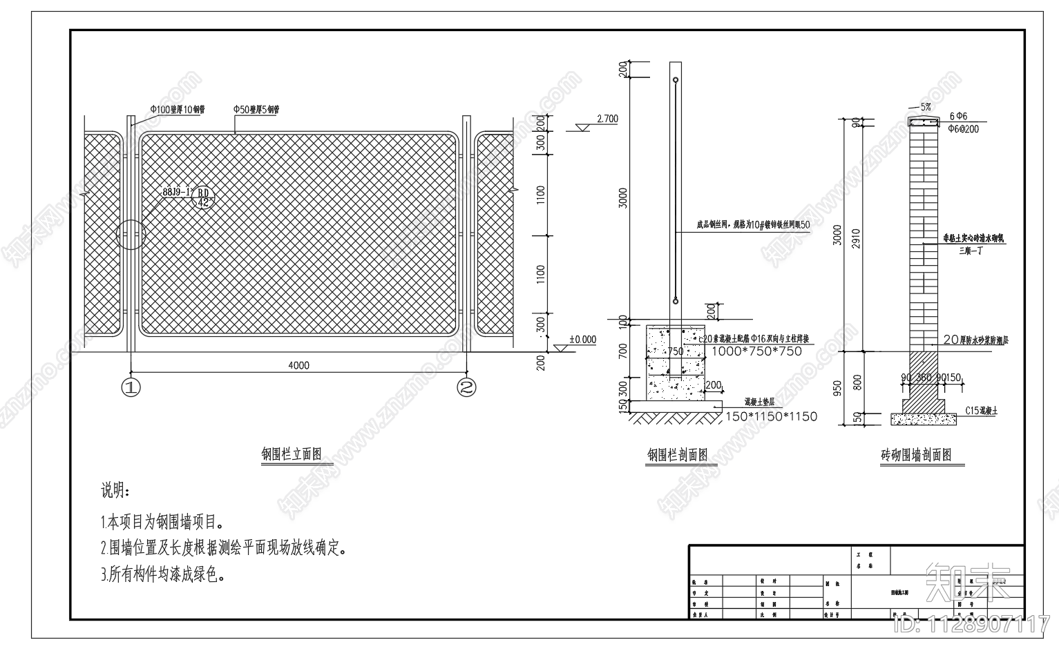
铁丝网围墙钢围栏 施工图 墙面节点
1/
3
Previous
Next
铁丝网围墙钢围栏CAD下载
ID: 1128907117
复制
上传作者
小小鱼鱼
上传时间
2023-02-12
文件大小
0.07M
设计风格:
--
CAD版本:
CAD2000
包含文件:
CAD
授权
独家
立即下载
收藏
分享
举报
相关推荐
综合
墙面节点
轻钢龙骨隔墙
背景墙节点
壁龛节点
隔音墙节点