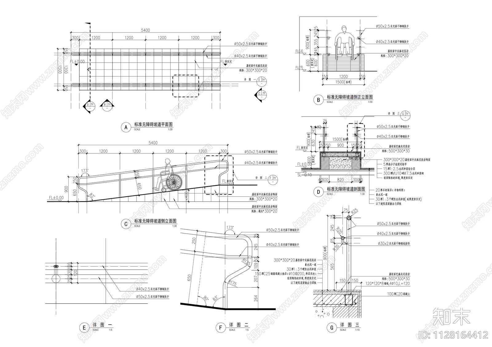
无障碍坡道施工图下载【ID:1128164412】

无障碍坡道CAD下载

ID: 1128164412
复制
上传作者
KH68KH68

上传时间2023-02-01

文件大小0.22M

设计风格:--

CAD版本:CAD2004

包含文件:CAD

授权普通

立即下载
收藏
分享
举报
相关推荐
综合
地面节点
路面节点
地坪漆
地台节点
地毯节点
门槛石节点
木地板
花岗岩
地面综合节点