1/6


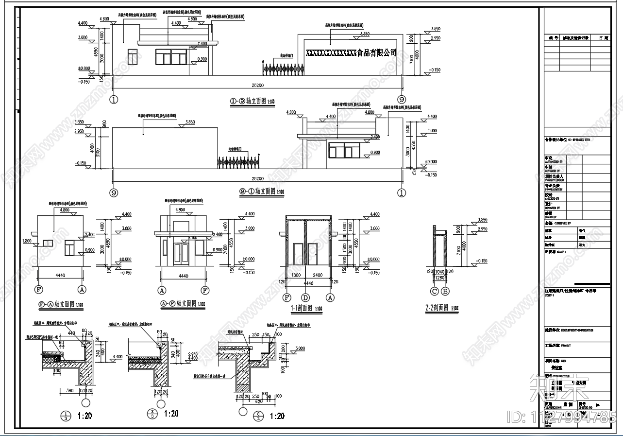
传达室建筑水电CAD下载
ID: 1127994785
复制
上传作者
小小鱼鱼
小小鱼鱼上传时间2023-01-28
文件大小0.42M
设计风格:--
CAD版本:CAD2000
包含文件:CAD
授权独家
立即下载
收藏
分享
举报
相关推荐
综合
建筑工程节点
建筑综合节点
屋顶
柱子节点
吊装节点
斗拱节点
楼板节点
女儿墙节点
塔吊节点
天窗节点


小小鱼鱼上传时间2023-01-28
文件大小0.42M
设计风格:--
CAD版本:CAD2000
包含文件:CAD
授权独家