CAD频道
CAD图库
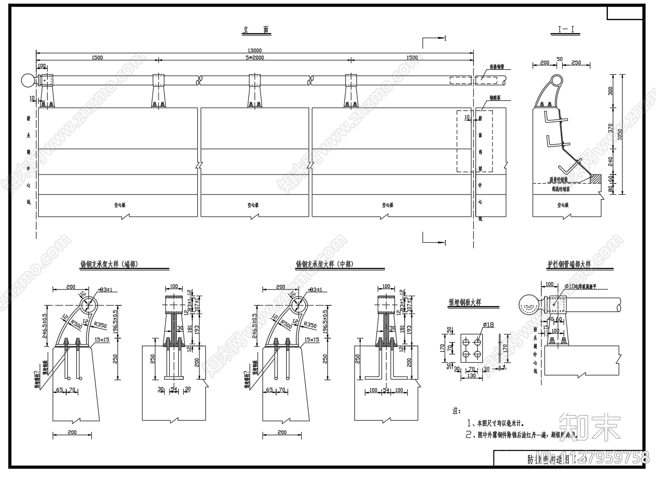
公路桥防撞墙 施工图 墙面通用节点
1/
3
Previous
Next
公路桥防撞墙CAD下载
ID: 1127959758
复制
上传作者
小小鱼鱼
上传时间
2023-01-26
文件大小
0.17M
设计风格:
--
CAD版本:
CAD2000
包含文件:
CAD
授权
独家
立即下载
收藏
分享
举报
相关推荐
综合
墙面节点
背景墙节点
轻钢龙骨隔墙
壁龛节点
隔音墙节点