1/4


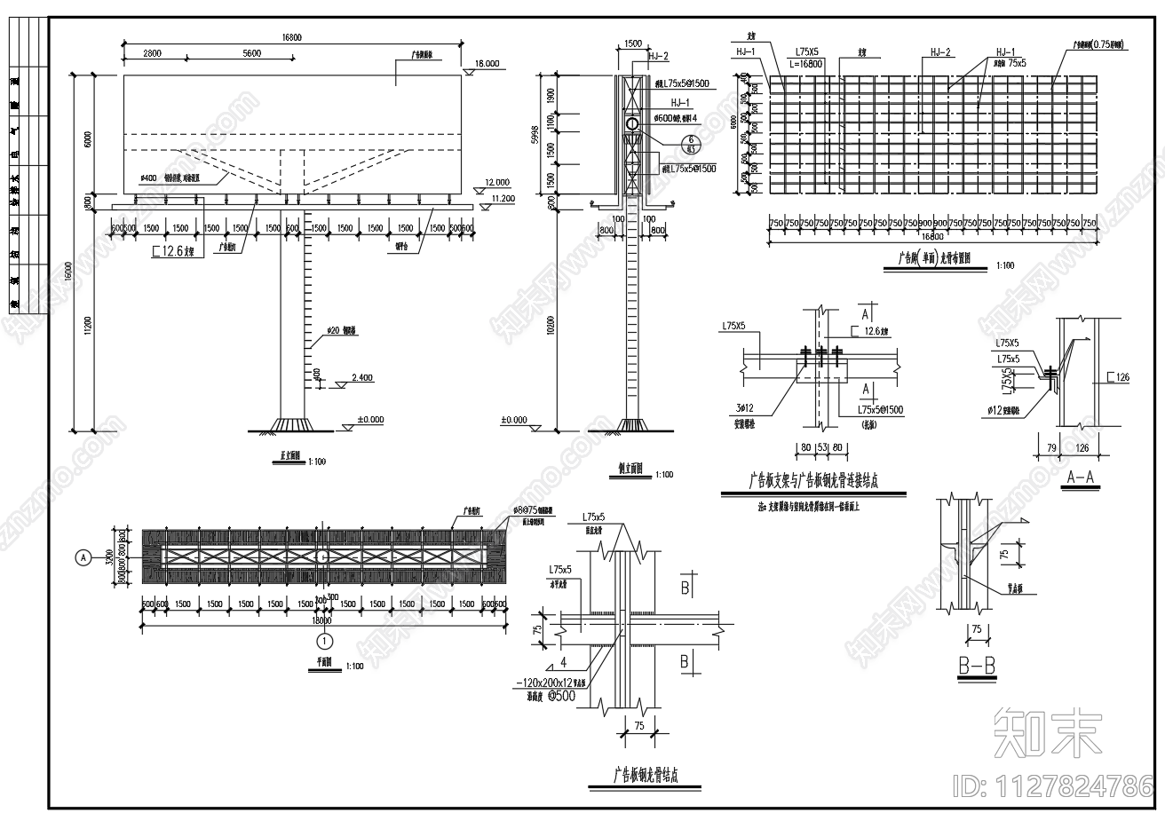
16米高大型钢结构广告牌结构设计CAD图纸下载
ID: 1127824786
复制
上传作者
小小鱼鱼
小小鱼鱼上传时间2023-01-15
文件大小0.18M
设计风格:--
CAD版本:CAD2000
包含文件:CAD
授权独家
立即下载
收藏
分享
举报
相关推荐
综合
结构设计
钢结构
混凝土结构
幕墙结构
砌体结构
木结构
结构节点图
其他结构图纸


小小鱼鱼上传时间2023-01-15
文件大小0.18M
设计风格:--
CAD版本:CAD2000
包含文件:CAD
授权独家