CAD频道
CAD图库
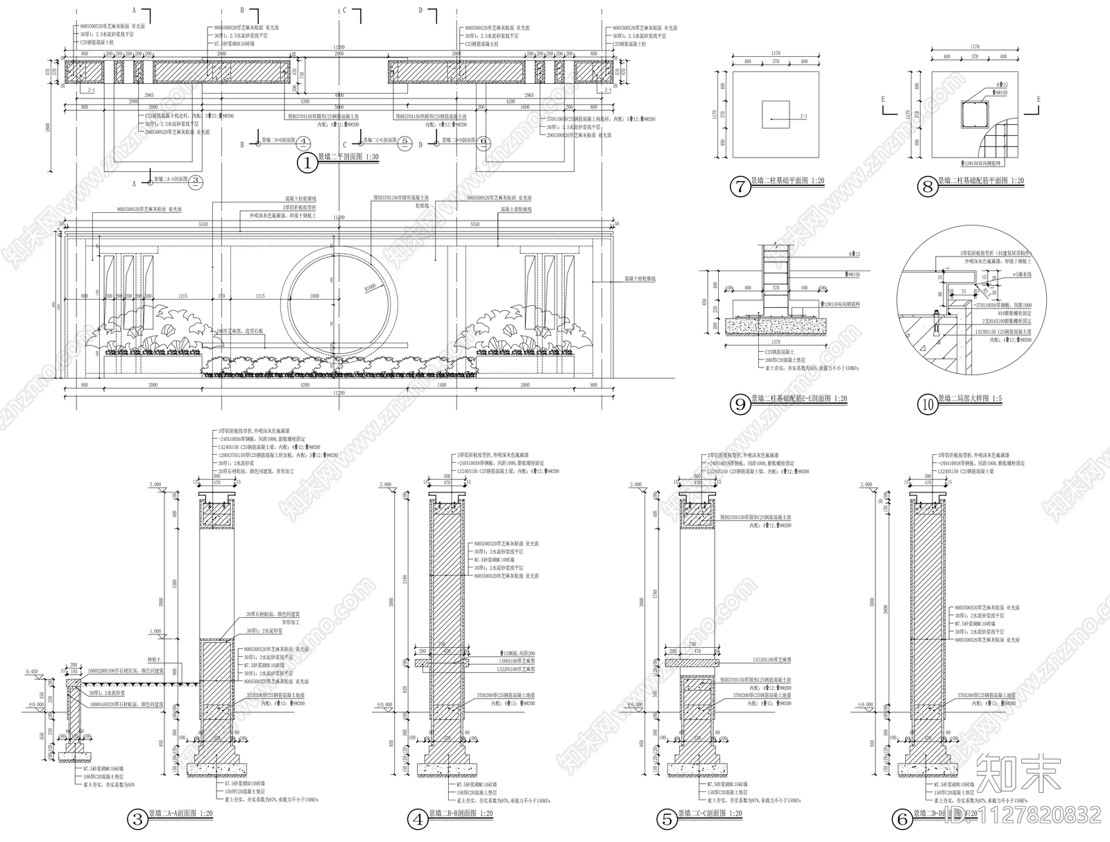
新中式小区景墙 施工图
1/
2
Previous
Next
新中式小区景墙CAD下载
ID: 1127820832
复制
上传作者
457145
上传时间
2023-01-15
文件大小
1.03M
设计风格:
现代简约
CAD版本:
CAD2006
包含文件:
CAD
授权
普通
立即下载
收藏
分享
举报
相关推荐
综合
景观小品
景墙
亭子
廊架
综合景观小品
雨棚
围墙
挡土墙
入口
景观坐凳