CAD频道
CAD图库
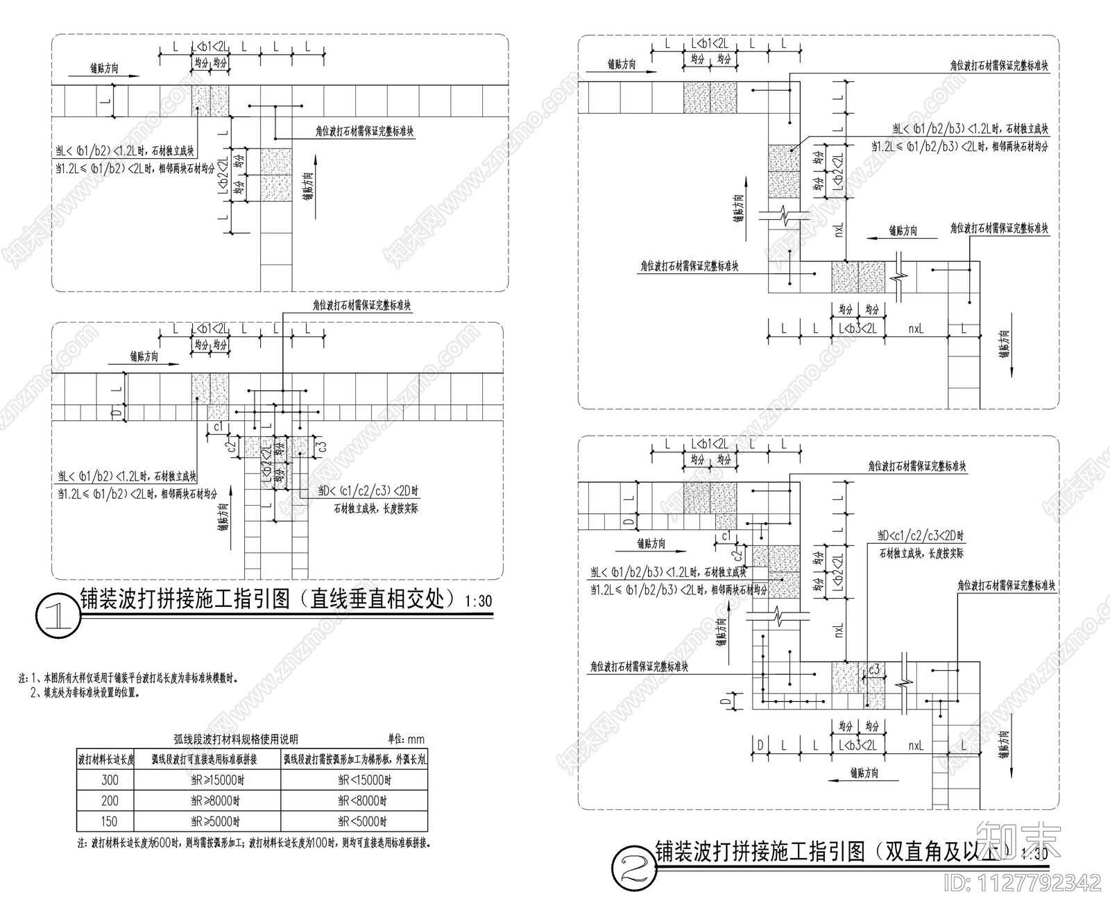
铺装波打拼接 施工图
1/
9
Previous
Next
铺装波打拼接CAD下载
ID: 1127792342
复制
上传作者
457145
上传时间
2023-01-13
文件大小
0.38M
设计风格:
现代简约
CAD版本:
CAD2006
包含文件:
CAD
授权
普通
立即下载
收藏
分享
举报
相关推荐
综合
景观小品
铺装
亭子
廊架
景墙
综合景观小品
雨棚
围墙
挡土墙
入口