CAD频道
CAD图库
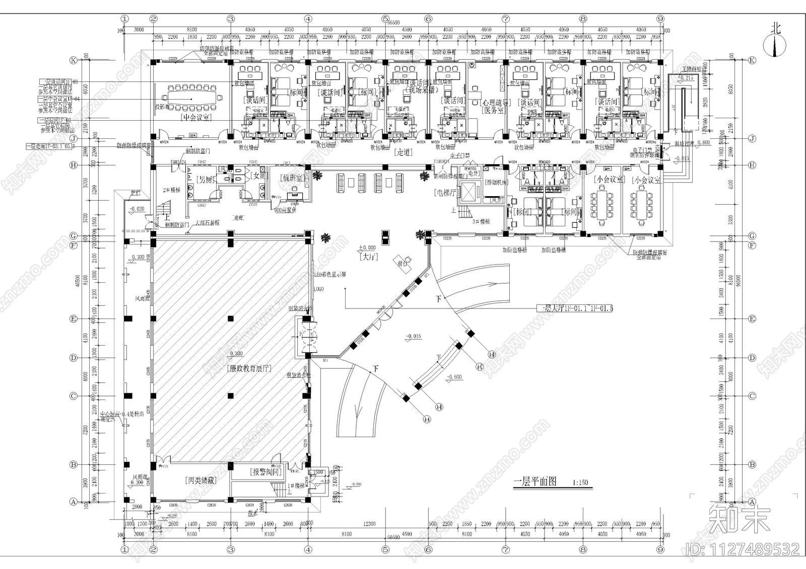
廉政中心办公大楼 施工图
1/
5
Previous
Next
廉政中心办公大楼CAD下载
ID: 1127489532
复制
上传作者
小趴菜园
上传时间
2023-01-05
文件大小
6.19M
设计风格:
--
CAD版本:
CAD2004
包含文件:
CAD
授权
独家
立即下载
收藏
分享
举报
相关推荐
综合
办公空间
开放办公室
会议室
休息室
整体办公空间
独立办公室
直播间
茶水间
接待室
工作室